EasyManua.ls Logo

Cleaver-Brooks ClearFire CFLC-5000 - Boiler Mechanical Assembly CFLC 6000;8000

Cleaver-Brooks ClearFire CFLC-5000
290 pages
Print Icon
To Next Page IconTo Next Page
To Next Page IconTo Next Page
To Previous Page IconTo Previous Page
To Previous Page IconTo Previous Page
Loading...
Section 6 — Parts
6-4 Part No. 750-363
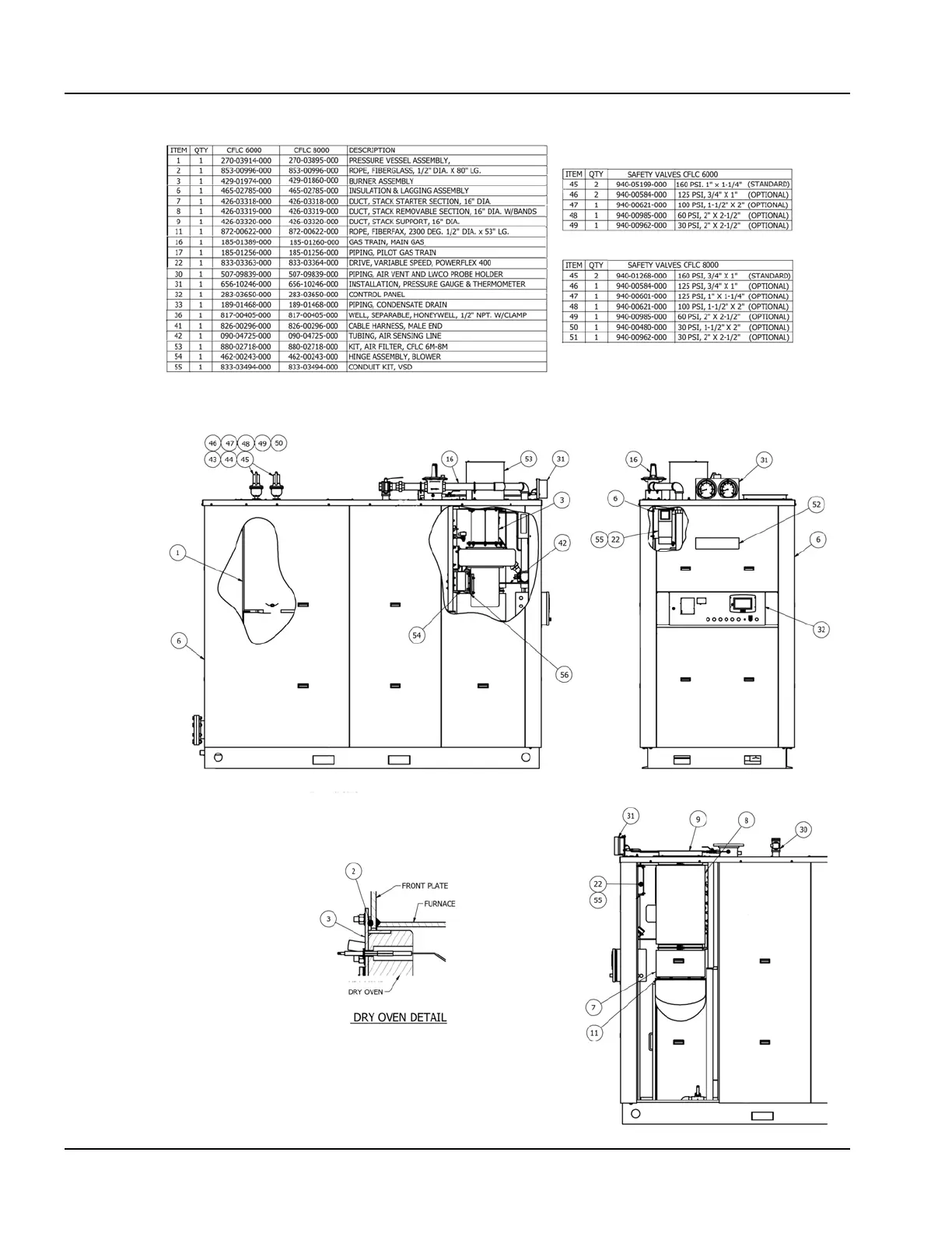
Figure 6-2. Boiler Mechanical Assembly CFLC 6000/8000

Table of Contents

Related product manuals