EasyManua.ls Logo

JLG 4394RT - Main Valve Schematic

JLG 4394RT
240 pages
Print Icon
To Next Page IconTo Next Page
To Next Page IconTo Next Page
To Previous Page IconTo Previous Page
To Previous Page IconTo Previous Page
Loading...
SECTION 4 - HYDRAULICS
4-16 – JLG Lift – 3121642
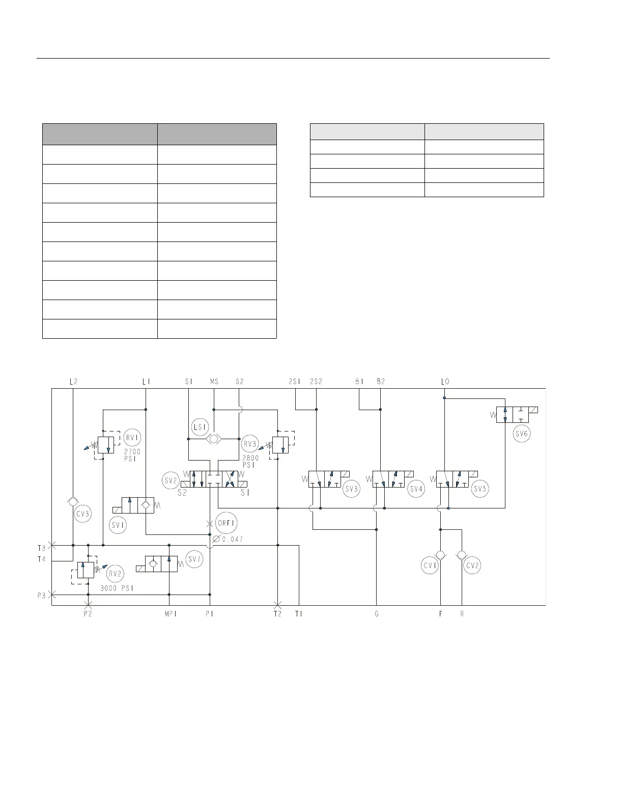
Table 4-3. Main Valve Torque Specs
Component Torque
SV1 (Lift Up) 25 lb-ft (34.2 Nm)
SV2 (Steer) 20 lb-ft (27.3 Nm)
SV3 (2-Spd) 20 lb-ft (27.3 Nm)
SV4 (Brakes) 20 lb-ft (27.3 Nm)
SV5 (Osc Axle 1) 20 lb-ft (27.3 Nm)
SV6 (Osc Axle 2) 25 lb-ft (34.2 Nm)
SV7 (Dump Valve) 25 lb-ft (34.2 Nm)
CL1 & CL2 (Coil) 5 lb-ft (6.8 Nm)
RV1, RV2 & CV3 25 lb-ft (34.2 Nm)
RV3, LS1, CV1 & CV2 20 lb-ft (27.3 Nm)
Table 4-4. Porting Specs
Port Size
L2, P1 & T1 SAE 10
L1 SAE 08
G, P2, P3, T4 & T2 SAE 06
All Others SAE 04
Figure 4-17. Main Valve Schematic

Table of Contents

Other manuals for JLG 4394RT

Related product manuals