EasyManua.ls Logo

Komatsu 930E-2 - Float Position

Komatsu 930E-2
739 pages
Print Icon
To Next Page IconTo Next Page
To Next Page IconTo Next Page
To Previous Page IconTo Previous Page
To Previous Page IconTo Previous Page
Loading...
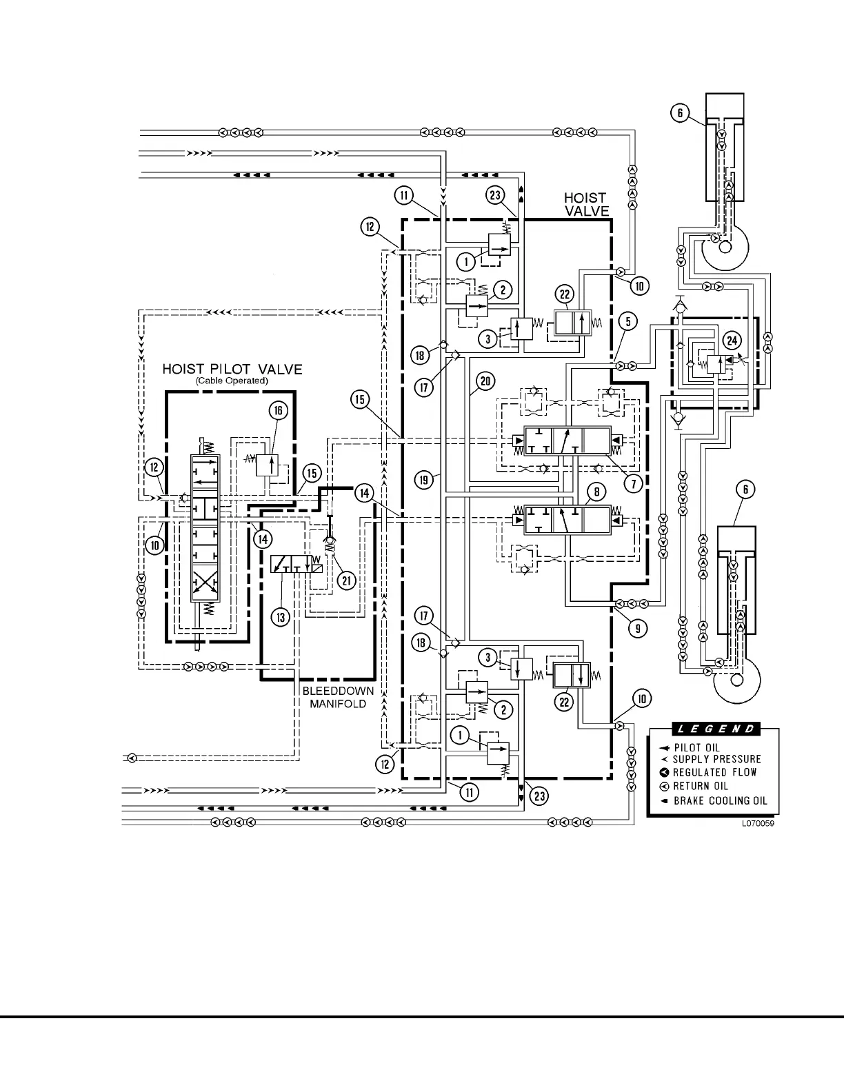
FIGURE 7-5. FLOAT POSITION
1. Hoist Relief Valve (2500 psi)
2. Flow Control Valve
3. Secondary Low Press. Valve (250 psi)
4. Snubber Valve
5. Rod End Work Port
6. Hoist Cylinders
7. Rod End Spool
8. Head End Spool
9. Head End Work Port
10. Tank Return Port
11. Supply Port
12. Pilot Supply Port
13. Hoist Limit Solenoid
14. Raise Pilot Port
15. Down Pilot Port
16. Power Down Relief
Valve (1500 psi)
17. Anti-void Check Valve
18. Load Check Valve
19. High Pressure Passage
20. Low Pressure Passage
21. Pilot Operated Check Valve
22. Primary Low Pressure Valve (26 psi)
23. Brake Cooling Circuit Port
24. Overcenter Manifold
L07023 Hoist Circuit L7-7

Table of Contents

Related product manuals