EasyManua.ls Logo

Siemens SIPROTEC 7UM62 - Dimensional Drawing of 20 Hz Bandpass 7 XT3400-0 BA00 for Panel Surface Mounting

Siemens SIPROTEC 7UM62
638 pages
To Next Page IconTo Next Page
To Next Page IconTo Next Page
To Previous Page IconTo Previous Page
To Previous Page IconTo Previous Page
Loading...
Technical Data
4.39 Dimensions
SIPROTEC, 7UM62, Manual
C53000-G1176-C149-7, Release date 03.2010
540
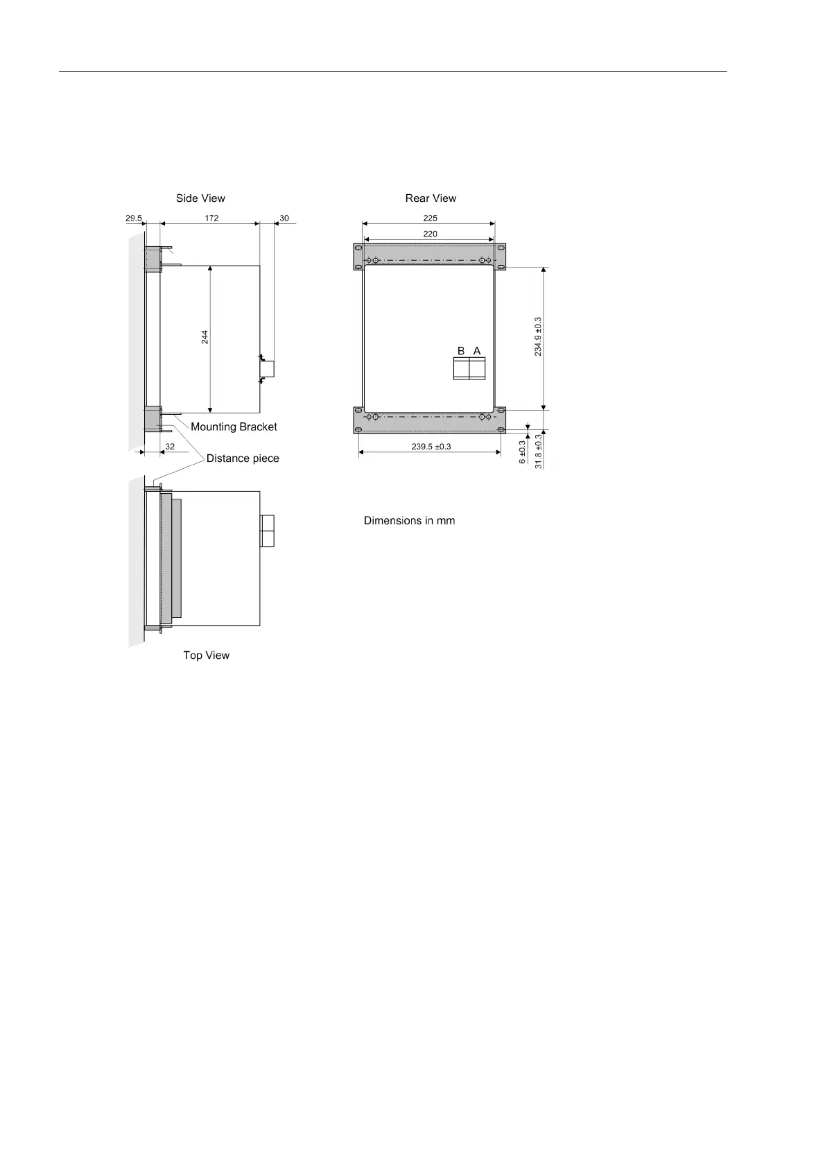
4.39.17 Dimensional Drawing of 20 Hz Bandpass 7XT3400-0BA00 for Panel Surface
Mounting
Figure 4-30 Dimensions of 20 Hz Bandpass Filter 7XT3400-0BA00 for Panel Surface Mounting
*) Two set squares C73165-A63-C201-1 and 4 distance pieces C73165-A63-C203-1 are necessary for
panel surface mounting.
Fix the set squares to the mounting rails of the device, using screws size M4.
Fit threaded holes size M6, bolts size M6 or appropriately sized dowel holes into the panel, according
to the above drawing.
Fasten the 7XT34 device with the fixed set squares to the panel using 6 mm screws, and ensure correct
distance by means of the distance pieces.
When using fixed bolts: Fit the distance pieces onto the bolts and fasten the set squares by means of
female screws.

Table of Contents

Related product manuals