EasyManua.ls Logo

LSIS sv-ip5a - CHAPTER 3 - INSTALLATION; Installation Precautions

LSIS sv-ip5a
210 pages
Print Icon
To Next Page IconTo Next Page
To Next Page IconTo Next Page
To Previous Page IconTo Previous Page
To Previous Page IconTo Previous Page
Loading...
3-1
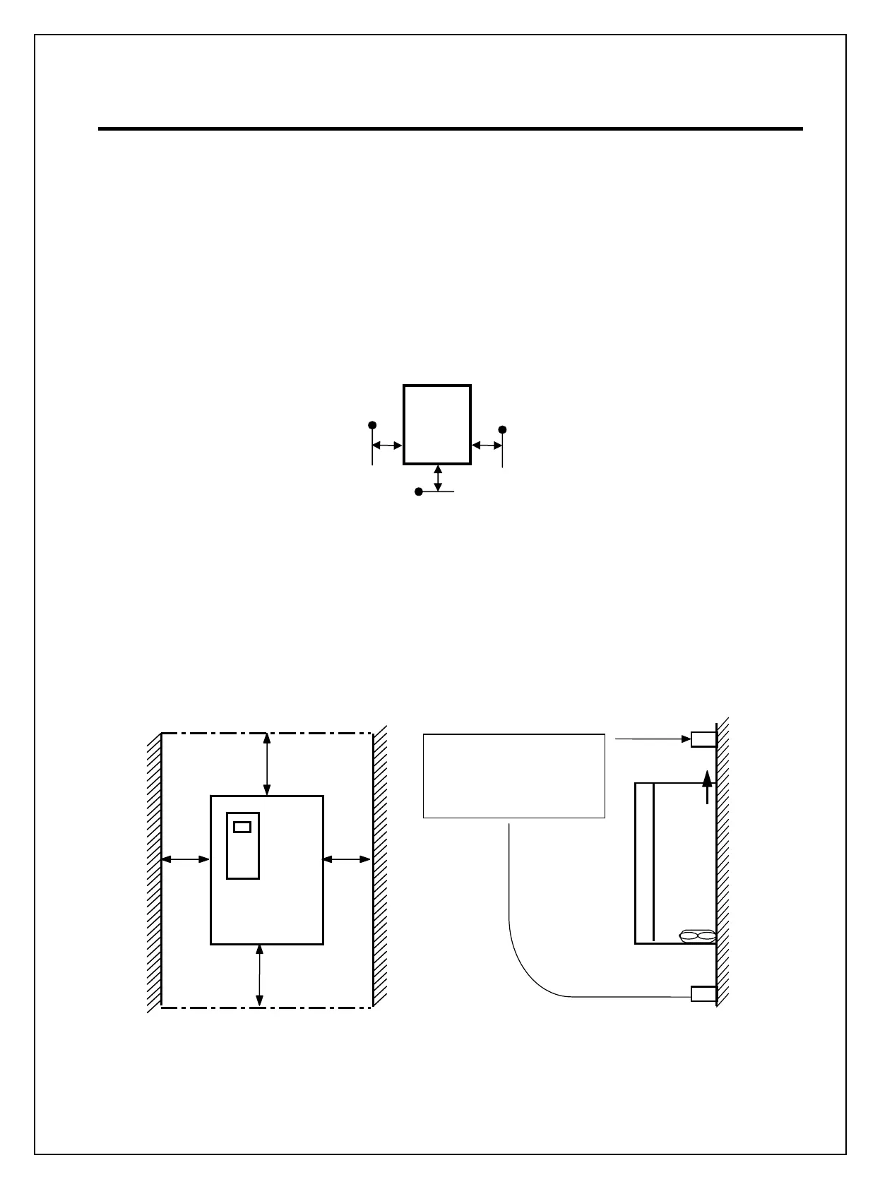
Cooling fan
Cooling air
Leave space enough to allow
cooled air flowing easily
between wiring duct and the
unit.
CHAPTER 3 - INSTALLATION
3.1 Installation precautions
1) Handle the inverter with care to prevent damage to the plastic components. Do not hold the inverter by the
front cover.
2) Do not mount the inverter in a location where excessive vibration (5.9 m/sec
2
or less) is present such as
installing the inverter on a press or other moving equipment.
3) Install in a location where temperature is within the permissible range (-10~40°C).
4) The inverter will be very hot during operation. Install it on a non-combustible surface.
5) Mount the inverter on a flat, vertical and level surface. Inverter orientation must be vertical (top up) for
proper heat dissipation. Also leave sufficient clearances around the inverter. However, A= Over 500mm and B=
200mm should be obtained for inverters rated 30kW and above.
Temp
checking point
Temp checking
point
5 cm
5 cm
5 cm
Inverter
B:5cm
Min
B:5cm
Min
Inverter
A: 10cm Min
A: 10cm Min

Table of Contents

Related product manuals