EasyManua.ls Logo

Sam Sirius 830 - Appendix A Router and Power Supply Shelf Dimensions; Sirius 830 Frame Dimensions

Default Icon
365 pages
Print Icon
To Next Page IconTo Next Page
To Next Page IconTo Next Page
To Previous Page IconTo Previous Page
To Previous Page IconTo Previous Page
Loading...
Sirius 800 Series User Manual Sirius 830 Frame Dimensions Router and Power Supply Shelf Dimensions A.1
Iss 5 Rev 7 Page 300 © 2017 SAM
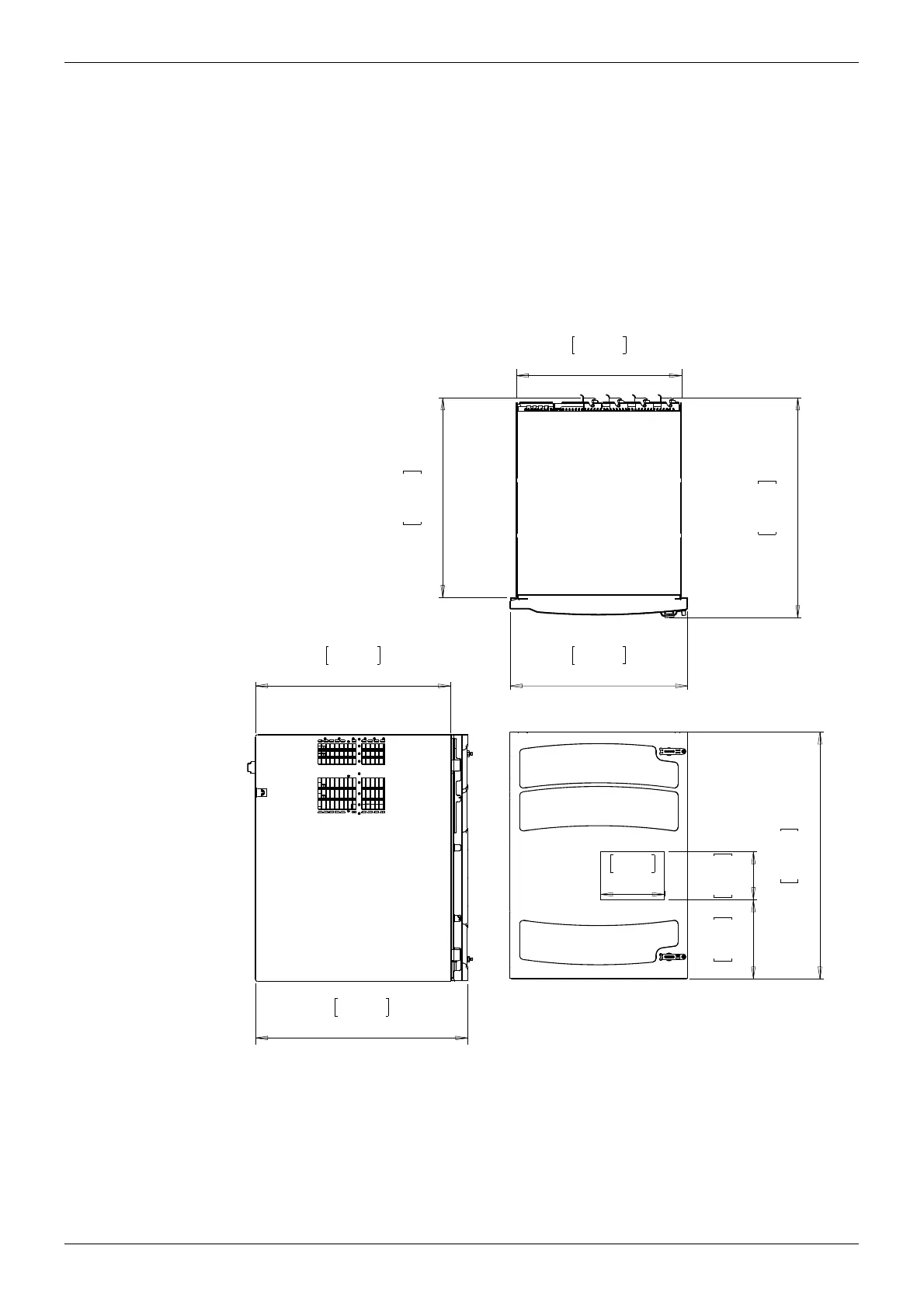
Appendix A Router and Power Supply Shelf Dimensions
A.1 Sirius 830 Frame Dimensions
Make sure that sufficient space is available for the Sirius 830. For ventilation purposes, there
must be an additional 50 mm (2 inch) gap on the left and right sides.
The full height of the Sirius 830 is 668 mm (26.3 inches). Allow an additional 200 mm
(8 inches) behind the unit for power, control and signal cables.
Figure 192 Sirius 830 Frame Dimensions
574.4
22.61
527.5
20.77
668.1
26.30
214.4
8.44
130
5.12
173.3
6.82
447
17.60
594.3
23.40
540.2
21.27
481
18.94
Dimensions are of full size system (without the power supplies)
Dimensions are in millimeters (inches).

Table of Contents

Other manuals for Sam Sirius 830

Related product manuals