EasyManua.ls Logo

YASKAWA SGDH - Three-Phase 400 V, 6.0 Kw, 7.5 Kw Models

YASKAWA SGDH
616 pages
Print Icon
To Next Page IconTo Next Page
To Next Page IconTo Next Page
To Previous Page IconTo Previous Page
To Previous Page IconTo Previous Page
Loading...
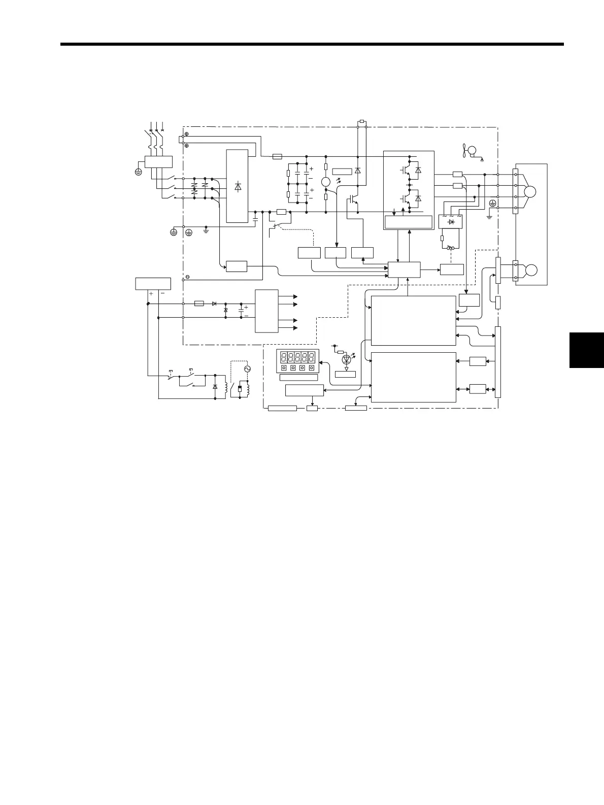
4.3 SERVOPACK Internal Block Diagrams
4-15
4
4.3.7 Three-phase 400 V, 6.0 kW, 7.5 kW Models
1KM
XX3
FU1
P
N
R
S
T
L1
L2
L3
XX1
1
2
XX2
CHARGE
B1
B2
C1
P
N
U
V
W
RY1
FAN1
±12 V
I/O
A/D
L1C
FU2
DB
RLY2
CN2
CN8
CN1
U
V
W
POWER
CN10
CN5
CN3
±12 V
+5 V
+15 V
+7.5 V
+5 V
0 V
2RY
2RY
-+
CT1
CT2
C2
1KM
+10%
-15%
AC power supply
(100 V / 200 V)
PG
M
1KM
Three-phase 380 to 480 V
(50/60 Hz)
Noise filter
Control power
+24 VDC
(not provided)
Power
OFF
Power
ON
Open during
servo alarm
(1RY)
High speed
diode
DC / DC
converter
Connector for
application
module
Analog monitor
output for
supervision
Digital operator or
personal computer
Panel operator
Analog voltage
converter
Relay
drive
Voltage
sensor
Gate
drive
Gate drive overcurrent
/overheat protector
Interface
Relay
drive
ASIC
(PWM control, etc.)
CPU
(Position/speed
calculation, etc.)
PG output
Reference pulse input
Speed/torque reference
input
Sequence I/O
For battery connection
Voltage
sensor
Current
sensor
Servomotor
Regenrative resistor (Option)
Surge suppressor

Table of Contents

Related product manuals