EasyManua.ls Logo

Comau C3G Plus - Blinker Unit and Main Switch Tripping; C3 G Plus KIT IVECO

Comau C3G Plus
266 pages
Print Icon
To Next Page IconTo Next Page
To Next Page IconTo Next Page
To Previous Page IconTo Previous Page
To Previous Page IconTo Previous Page
Loading...
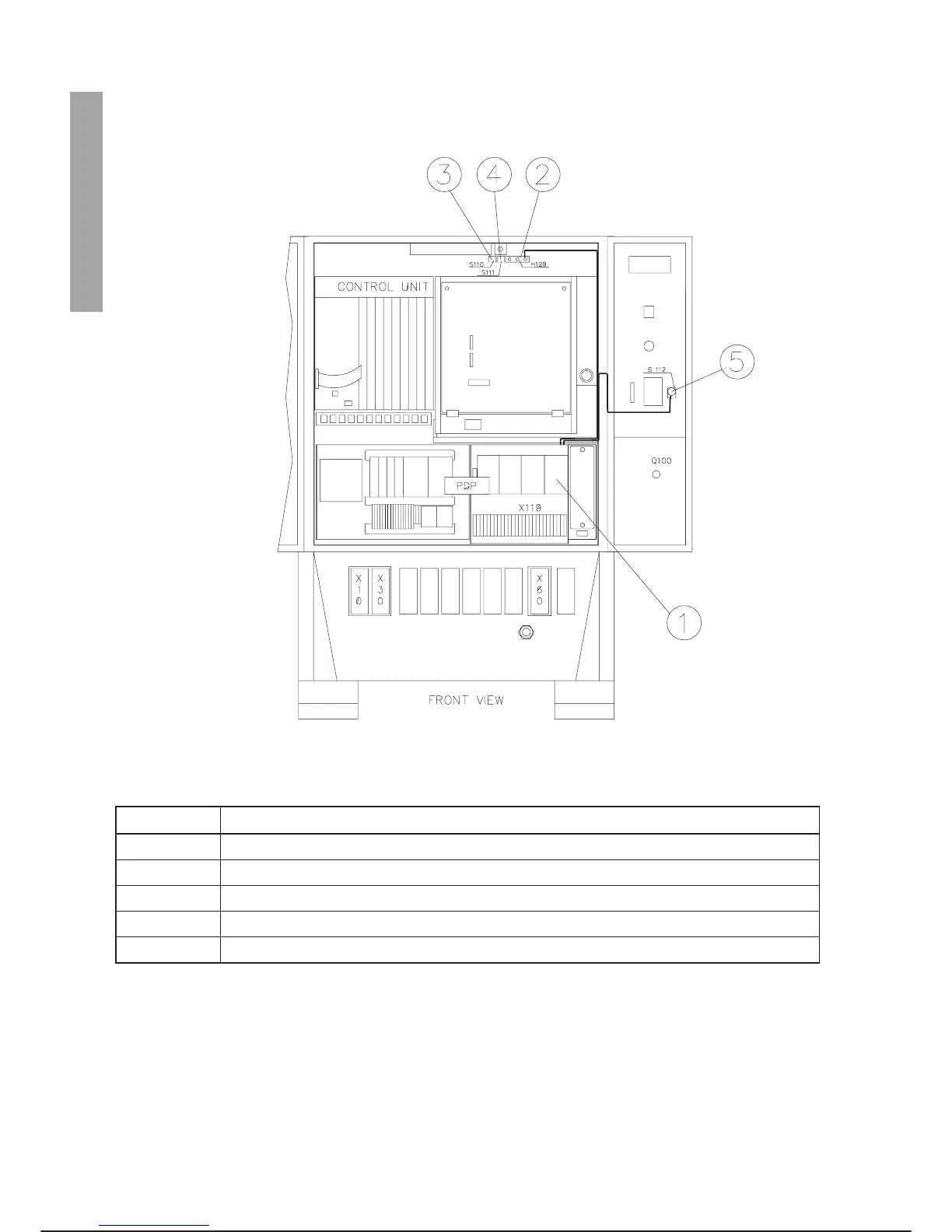
C3G Plus KIT IVECO
Blinker unit and main switch tripping
ITEM DESCRIPTION
1
Main switch with tripping coil
2
Blinker
3
Microswitch for blinker
4
Microswitch for tripping coil
5
Keylock selector switch with return spring on the control board
OPERATOR INTERFACE C3G Plus
3-70 05/1199
C3G Plus KIT IVECO

Table of Contents