EasyManua.ls Logo

Comau C3G Plus - Connector X113 Test Device; Safety Circuit Test Devices

Comau C3G Plus
266 pages
Print Icon
To Next Page IconTo Next Page
To Next Page IconTo Next Page
To Previous Page IconTo Previous Page
To Previous Page IconTo Previous Page
Loading...
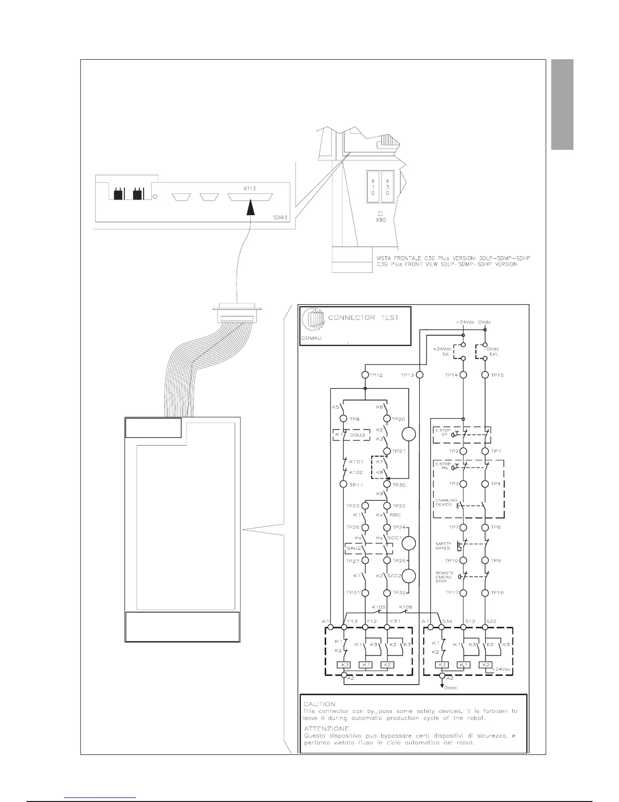
SAFETY CIRCUIT TEST DEVICES
Connector X113 test device:
C3G Plus MAINTENANCE
04/0799 7-31
diagnostic
C3G Plus

Table of Contents