EasyManua.ls Logo

HP Integrity rx6600 - Page 220

HP Integrity rx6600
348 pages
Print Icon
To Next Page IconTo Next Page
To Next Page IconTo Next Page
To Previous Page IconTo Previous Page
To Previous Page IconTo Previous Page
Loading...
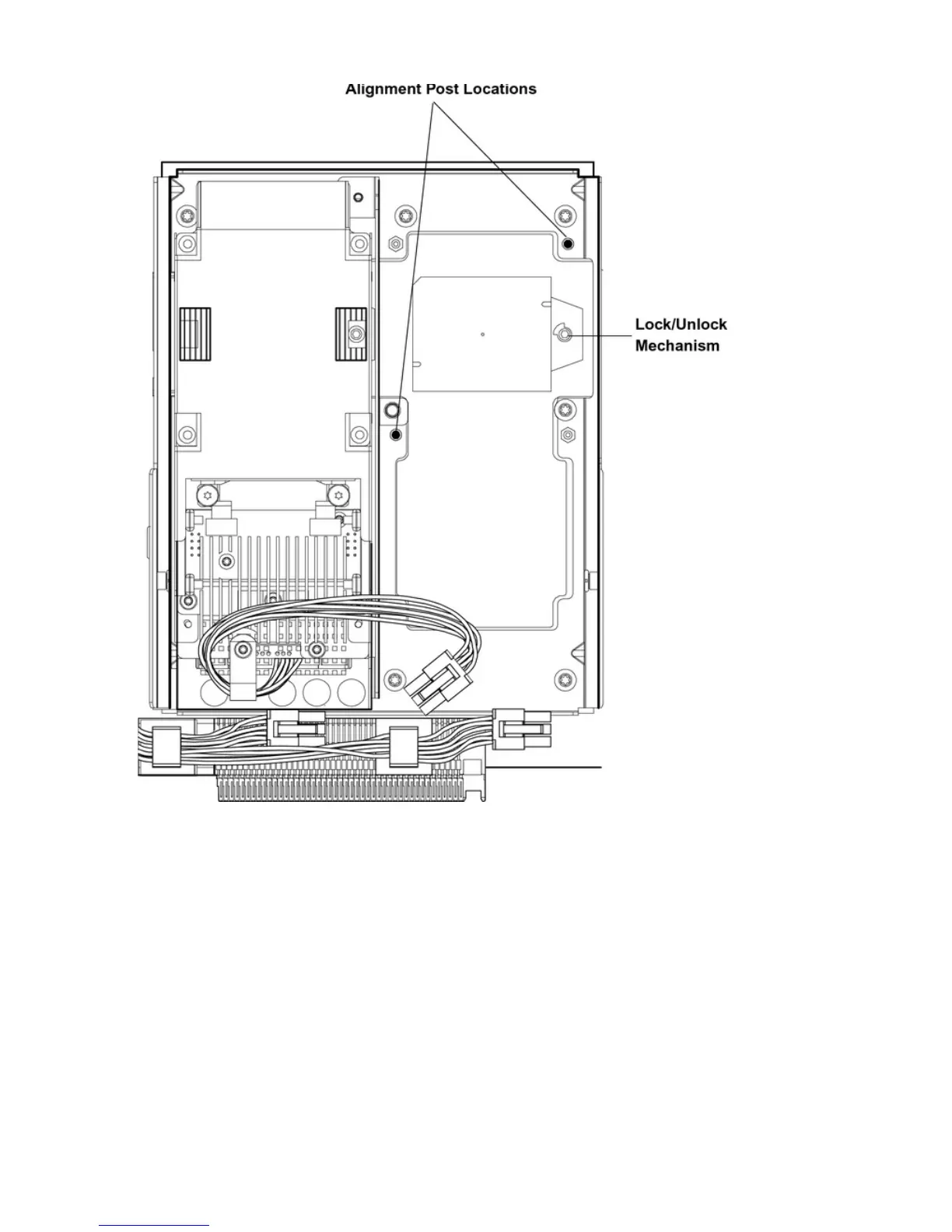
Figure 75 Processor Alignment Posts and Lock/Unlock Mechanism
Figure 76 shows the processor lock and unlock mechanism location and the alignment holes with
the processor installed:
220 Removing and Replacing Server Components

Table of Contents

Other manuals for HP Integrity rx6600

Related product manuals