EasyManua.ls Logo

REXROTH IndraDrive C - Page 236

REXROTH IndraDrive C
306 pages
Print Icon
To Next Page IconTo Next Page
To Next Page IconTo Next Page
To Previous Page IconTo Previous Page
To Previous Page IconTo Previous Page
Loading...
14-40 Accessories in the Drive System Rexroth IndraDrive Rexroth IndraDrive
DOK-INDRV*-SYSTEM*****-PR02-EN-P
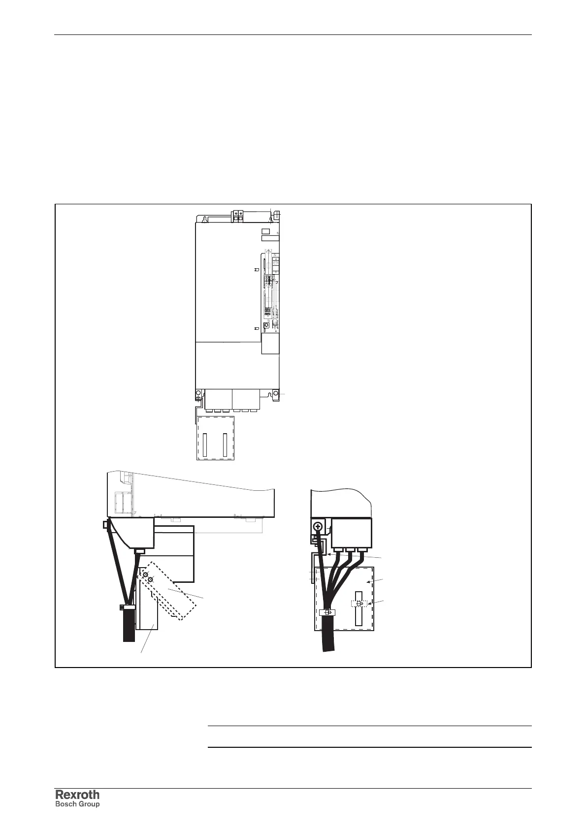
Mounting Shield Connection HAS02.1-005-NNN-NN to
Drive Controller HCS03.1E-W0100 / 150
1. Hang up support at guide section at bottom of drive controller and
fasten it by means of supplied screws.
2. Screw shielding plate to shield angle steel.
According to required motor cable routing, it is possible to mount angle
plate for shield connection in different positions:
motor cable routed in parallel or
45° to bottom of drive controller.
MZZU0009EN00.FH9
Installation 1
Installation 2
angle plate
clip
PE
PE
install the support on guide rail
with 2 screws
Fig. 14-37: Shielding plate HAS02.1-005-NNN-NN at the bottom of the drive
controller HCS03.1E-W0100 / 0150
3. Fix shield of motor cable to shielding plate with a clip.
Note: Adapt the size of the clip to the motor cable cross section.

Table of Contents

Related product manuals