EasyManua.ls Logo

Siemens SIMOCODE pro - Direct Starter Example Circuit; Reversing Starter Circuit Diagram

Siemens SIMOCODE pro
694 pages
Print Icon
To Next Page IconTo Next Page
To Next Page IconTo Next Page
To Previous Page IconTo Previous Page
To Previous Page IconTo Previous Page
Loading...
Example circuits
SIMOCODE pro
E-8 GWA 4NEB 631 6050-22 DS 03
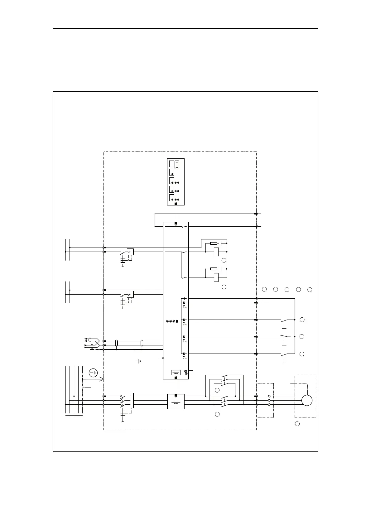
E.4 "Direct starter" example circuit
E.4.1 "Reversing starter" circuit diagram
Fig. E-5: "Reversing starter" circuit diagram
3
2
ON>
I
>
2
CT
6
SYS
A
14
-A12
2L1
BUS
Gen.fault
-X1
PE
I
>
-T10
-F11
9
PROFIBUS
1/N AC 50Hz 230V
U
5
1
T1
1
C 1,6A
L2
OFF
-F12
4
A2
6
18
-Q3
A2
B
14
X9
-M1
-S12
Profibus DP
1
3
5
11
A1
3/N/PE AC50Hz 400V
22
5
1
B
V
PE
IN2 IN3
OUT1 OUT2
IN4
PTC
IN1
OUT3
ON<
3
L3
A1
/.2
-A10
T1
L2
N
2
4
-X2
3 AC
M
19
7
9
-Q2
PE
5
> >>
II I
W
-Q2
-X19
/.4
2
3
2N
4
10
-Q3
A2
13
L1
-S13
-X1
1
1L1
1/N AC 50Hz 230V
13
T2
/.4
6
21
L3
6
B
A
5
1
4
1
A1
SIMOCODEpro C/V
BUS
RESET
GEN.FAULT
DEVICE
TEST/
2
T3
6
8
10
3
4
4
7
BU
230V AC
2
1
/.2
PE
2
2
Test/reset
24V
3
8
1
SPE/PE
T2
1N
6
3
20
SYS
-S11
-X19
C 1A
12
A
2
L1
Motor contactor
Run signal - right
Motor contactor
Run singal - left
Local
Off
Local
Run signal - right
Local
Run signal - left
Current measurement
Device
Basic Unit
Operator Panel

Table of Contents

Other manuals for Siemens SIMOCODE pro

Related product manuals