EasyManua.ls Logo

Siemens SINAMICS S120 - Page 394

Siemens SINAMICS S120
826 pages
To Next Page IconTo Next Page
To Next Page IconTo Next Page
To Previous Page IconTo Previous Page
To Previous Page IconTo Previous Page
Loading...
Motor Modules Booksize
6.3 Motor Module with external air cooling
Booksize Power Units
394 Manual, (GH2), 07/2016, 6SL3097-4AC00-0BP8
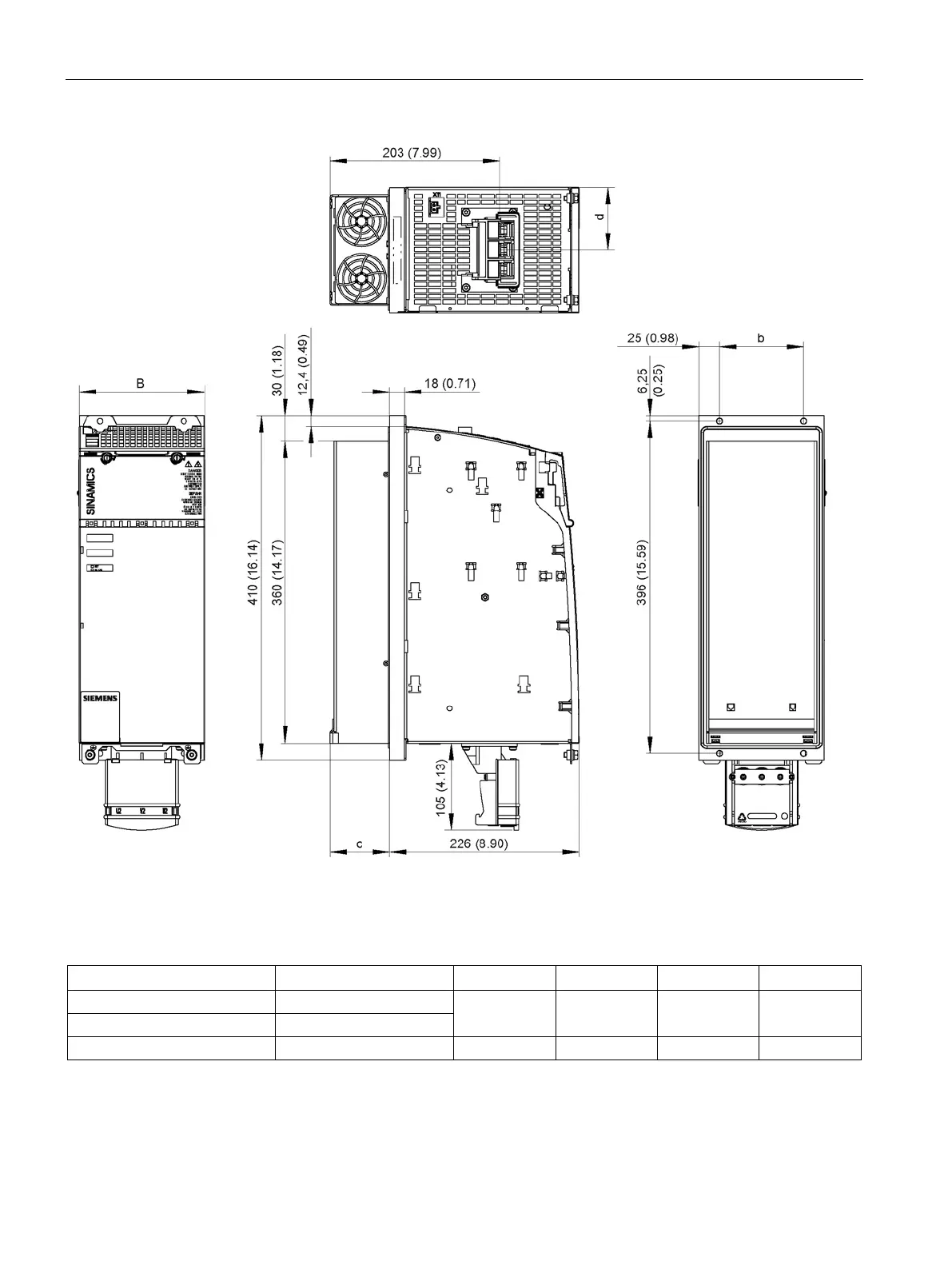
Figure 6-36 Dimension drawing of 45 A, 60 A and 85 A Motor Modules Booksize with external air cooling, all dimensions in
mm and (inches); example 45 A
Table 6- 24 Dimensions of 45 A, 60 A and 85 A Motor Modules Booksize with external air cooling
Motor Module
Article No.
B [mm] (inch)
b [mm] (inch)
c [mm] (inch)
d [mm] (inch)
Single Motor Module 45 A
6SL3121-1TE24-5AA.
150 (5.91)
100 (3.94)
71 (2.80)
75 (2.95)
Single Motor Module 60 A
6SL3121-1TE26-0AA.
Single Motor Module 85 A
6SL3121-1TE28-5AA.
200 (7.87)
150 (5.91)
92 (3.62)
100 (3.94)

Table of Contents

Other manuals for Siemens SINAMICS S120

Related product manuals