EasyManua.ls Logo

Siemens SINAMICS S120 - Dimension Drawing

Siemens SINAMICS S120
826 pages
To Next Page IconTo Next Page
To Next Page IconTo Next Page
To Previous Page IconTo Previous Page
To Previous Page IconTo Previous Page
Loading...
Accessories
11.5 DC link adapter
Booksize Power Units
Manual, (GH2), 07/2016, 6SL3097-4AC00-0BP8
643
11.5.4
Dimension drawing
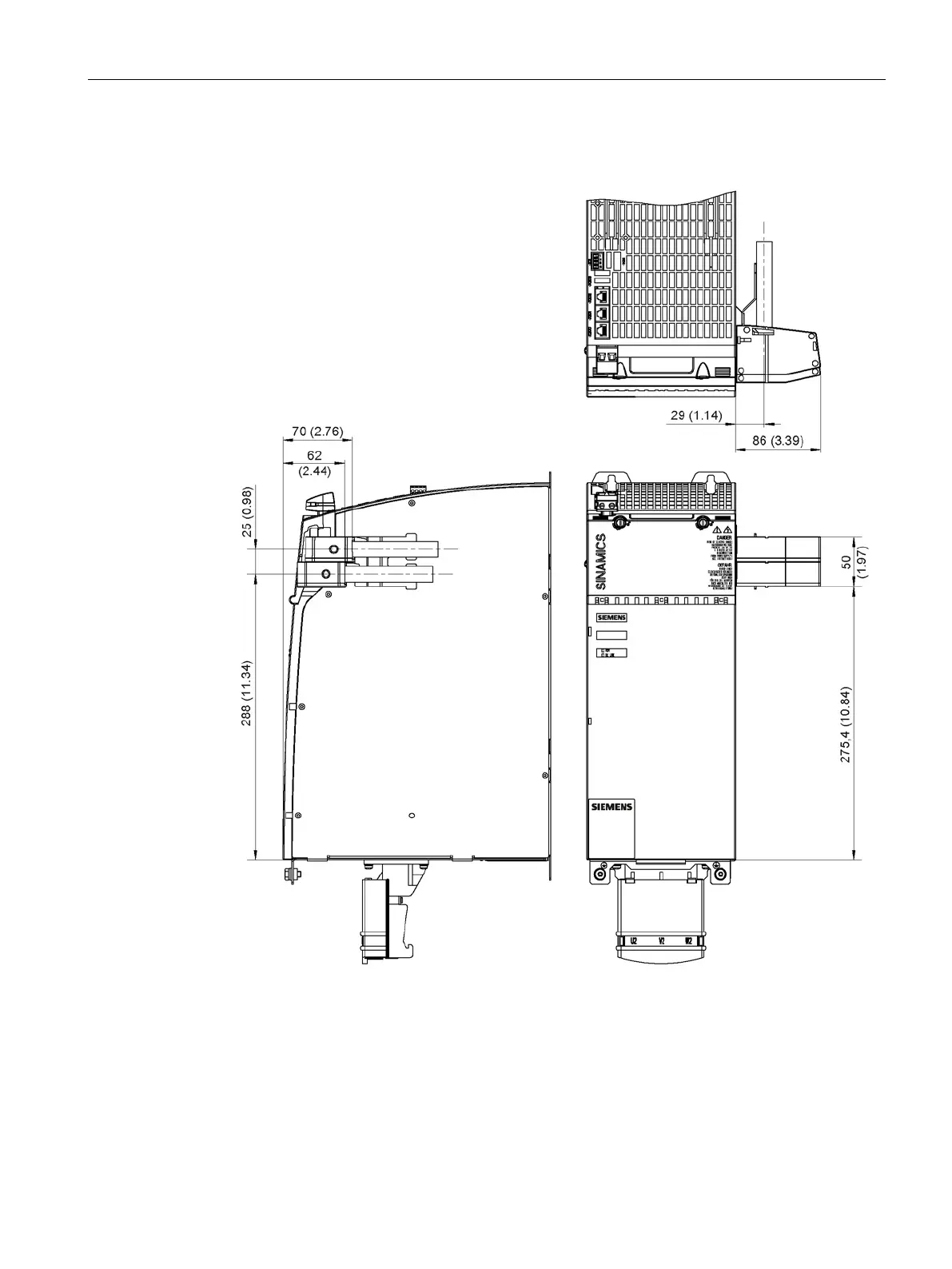
Figure 11-27 Dimension drawing of a 150 mm wide component with DC link adapter, all
dimensions in mm and (inches)

Table of Contents

Other manuals for Siemens SINAMICS S120

Related product manuals