EasyManua.ls Logo

Siemens SINAMICS S120 - Page 568

Siemens SINAMICS S120
826 pages
To Next Page IconTo Next Page
To Next Page IconTo Next Page
To Previous Page IconTo Previous Page
To Previous Page IconTo Previous Page
Loading...
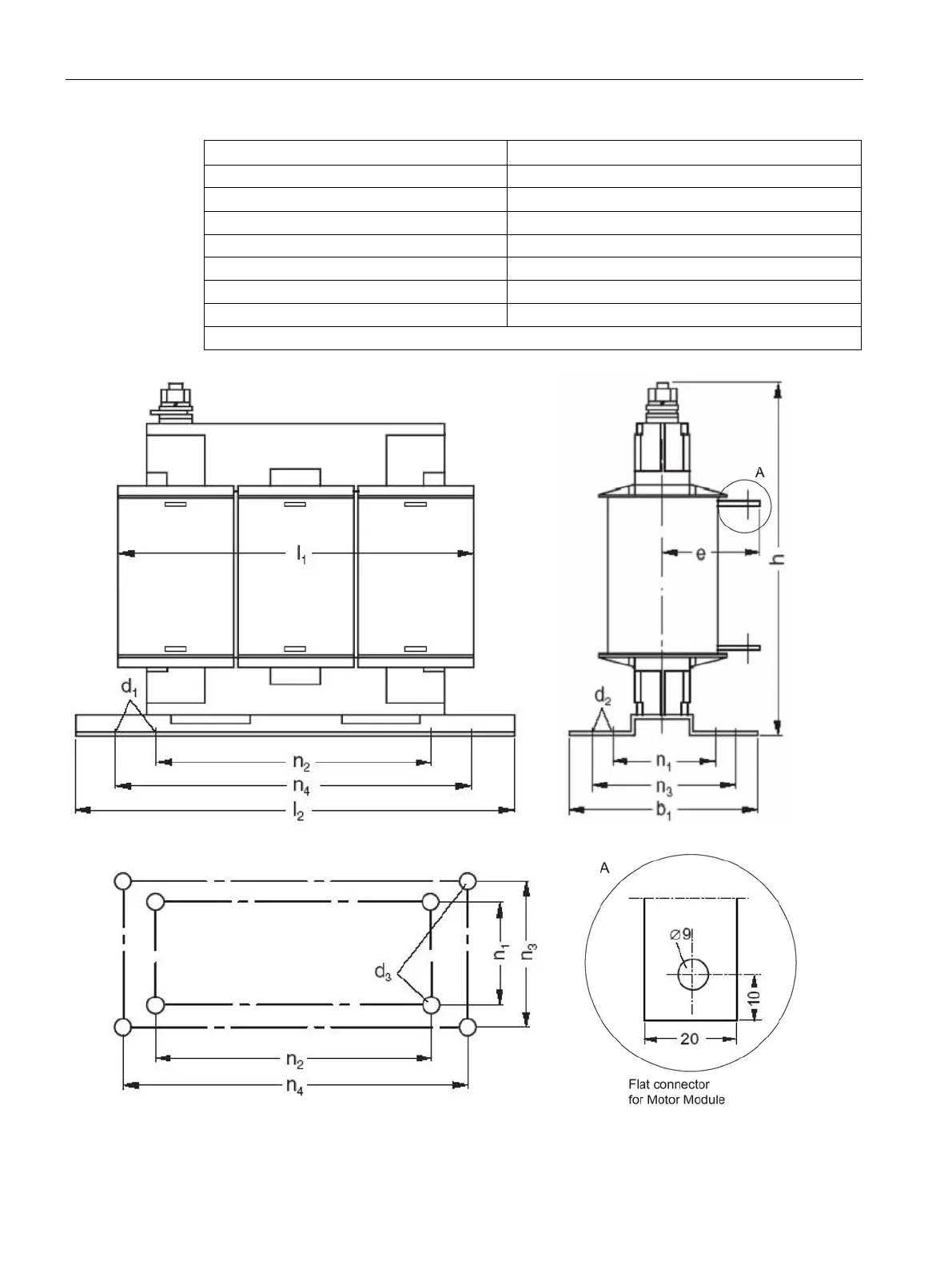
Motor-side power components
10.1 Motor reactors
Booksize Power Units
568 Manual, (GH2), 07/2016, 6SL3097-4AC00-0BP8
6SL3000-2BE21-0AA0
n
2
113 (4.44)
n
3
68 (2.67)
n
4
166 (6.53)
d
1
5.8 (0.22)
d
2
11 (0.43)
d
3
M5
PE
M6
Lengths n
1
, n
2
, n
3
and n
4
correspond to the distances between holes
Figure 10-4 Dimension drawing and mounting hole of motor reactor 60 A (6SL3000-2BE26-0AA0)

Table of Contents

Other manuals for Siemens SINAMICS S120

Related product manuals