EasyManua.ls Logo

GE Vivid P3

GE Vivid P3
336 pages
To Next Page IconTo Next Page
To Next Page IconTo Next Page
To Previous Page IconTo Previous Page
To Previous Page IconTo Previous Page
Loading...
GE HEALTHCARE PROPRIETARY TO GE
D
IRECTION 5344303-100, REVISION 3 VIVID P3 SERVICE MANUAL
10-20 Section 10-7 - Electrical Safety Tests
10-7-6-2 Generic Procedure
Measurements should be made with the ground open and closed, with power line polarity normal and
reversed, and with the unit Off and On. For each combination, the operating controls such as the lead
switch should be operated to find the worst case condition.
10-7-6-3 Dale 600 Meter Procedure
The Dale 600 provides five snap type ECG buttons for testing patient leads. Snap on all patient leads
to the meter and assure that the ground clip is connected to the system’s ground terminal. Select the
meter’s LEAD-GND function. Select and test each ECG lead positions (except “ALL”) of the LEAD
selector, testing each to the power condition combinations found in “PATIENT LEAD LEAKAGE” table
in the “PM CHECKLIST”. Record the highest leakage current measured for each Power selection.
Follow these steps to test the ECG module for leakage current.
1.) Turn the VIVID P3 unit OFF.
2.) Plug the unit into the meter, and the meter into the tested AC wall outlet.
3.) Plug the black chassis cable into the meter's “CHASSIS” connector and attach the black chassis
cable clamp to an exposed metal part of the VIVID P3 unit.
4.) Connect the patient leads to the corresponding snaps located at the upper front of the Dale 600/
600E. Lead nomenclature for this test is not important.
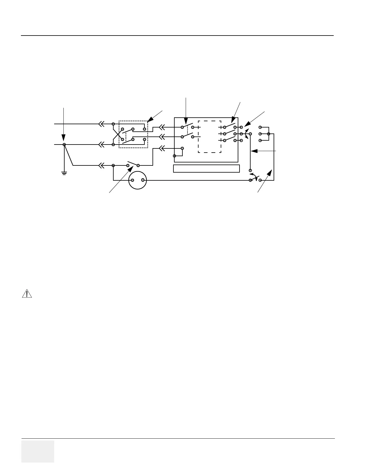
Figure 10-6 Test Circuit for Measuring Non-Isolated Patient Leads
CAUTION
Line voltage is applied to the ECG leads during this test. To avoid possible electric shock
hazard, the system being tested must not be touched by patients, users or anyone while the ISO
TEST switch is depressed. When the meter's ground switch is OPEN, don't touch the unit!
POWER
OUTLET
H (Black)
N (White)
G (Green)
Internal
circuitry
Insulating surface
Polarity reversing switch
(use both positions)
Appliance power switch
(use both “off” and “on” positions)
Patient connected leads
The connection is at service entrance
or on the supply side of a separately
derived system
Building
ground
Grounding contact switch (use in both
“open” and “closed” positions)
Current meter
H = Hot
N = Neutral (grounded)
G = Grounding conductor
H
N
G
Patient lead selector switch (if any)
(activated as required)
Appliance
Between each patient
lead and ground

Table of Contents

Other manuals for GE Vivid P3

Related product manuals