EasyManua.ls Logo

GE Vivid P3 - 2-3-3-1 Recommended and Alternate Ultrasound Room Layout

GE Vivid P3
336 pages
Print Icon
To Next Page IconTo Next Page
To Next Page IconTo Next Page
To Previous Page IconTo Previous Page
To Previous Page IconTo Previous Page
Loading...
GE HEALTHCARE PROPRIETARY TO GE
D
IRECTION 5344303-100, REVISION 3 VIVID P3 SERVICE MANUAL
Chapter 2 Pre Installation 2-9
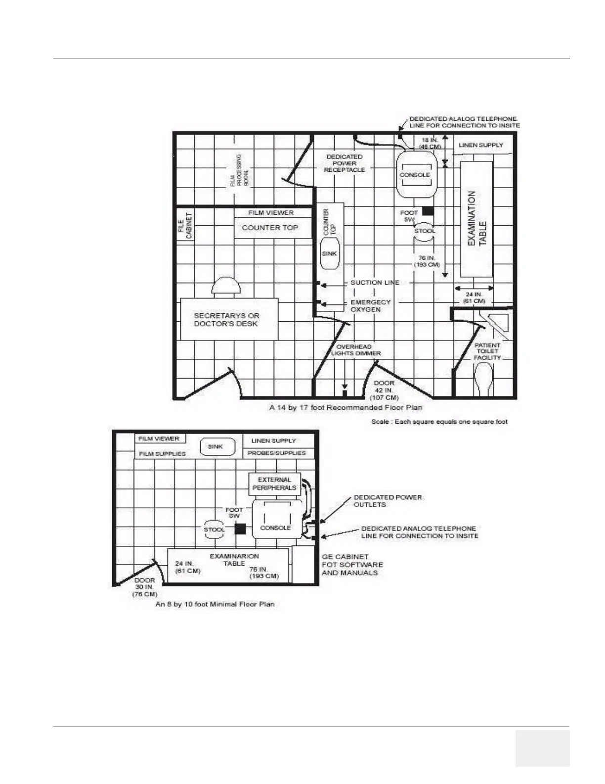
2-3-3-1 Recommended and Alternate Ultrasound Room Layout
Recommended standard floor plan and a minimal floor plan for ultrasound equipment:
Figure 2-6 RECOMMENDED ULTRASOUND ROOM LAYOUT

Table of Contents