EasyManua.ls Logo

Juniper SRX5400 - Flex I;O Card (SRX5 K-FPC-IOC) Specifications

Juniper SRX5400
438 pages
Print Icon
To Next Page IconTo Next Page
To Next Page IconTo Next Page
To Previous Page IconTo Previous Page
To Previous Page IconTo Previous Page
Loading...
Flex I/O Card (SRX5K-FPC-IOC) Specifications
The SRX5K-FPC-IOC Flex I/O card (Flex IOC) (Figure 61 on page 137) is an IOC with two slots that accept
port modules that add Ethernet ports to your services gateway. A Flex IOC with installed port modules
functions in the same way as a regular IOC, but allows greater flexibility in adding different types of Ethernet
ports to your services gateway.
Each Flex IOC has a processor subsystem, which includes a 1.2-GHz CPU, a system controller, 1 GB
SDRAM, and two Packet Forwarding Engines with a maximum throughput of 10 Gbps each.
You must install at least one IOC in the services gateway. The IOC can be of any of the available IOC or
Flex IOC types.
You can install Flex IOCs in any of the slots that are not reserved for Switch Control Boards (SCBs). If a
slot is not occupied by a card, you must install a blank panel to shield the empty slot and to allow cooling
air to circulate properly through the services gateway.
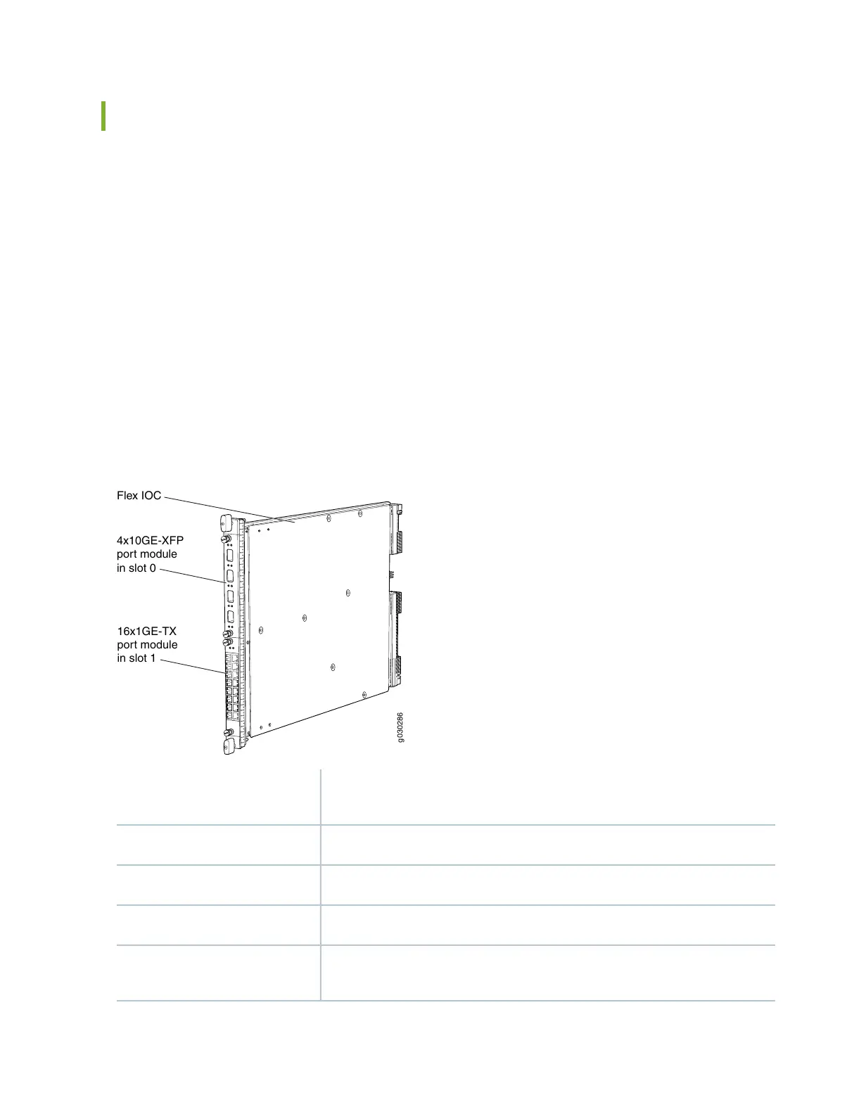
Figure 61: Flex IOC with Typical Port Modules
g030286
Flex IOC
4x10GE-XFP
port module
in slot 0
16x1GE-TX
port module
in slot 1
Flex IOC with slots for two port modules
Maximum throughput: 10 Gbps (per PFE)
Description
Junos OS Release 9.5R1 and laterSoftware release
Slots for two port modulesCables and connectors
NoneControls
SRX5600–Any slot except bottom slots 0 or 1
SRX5800–Any slot except center slots 0, 1, or 2/6
Supported Slots
137

Table of Contents

Other manuals for Juniper SRX5400

Related product manuals