EasyManua.ls Logo

Mack ASET AC - Page 206

Default Icon
536 pages
Print Icon
To Next Page IconTo Next Page
To Next Page IconTo Next Page
To Previous Page IconTo Previous Page
To Previous Page IconTo Previous Page
Loading...
REPAIR INSTRUCTIONS, PART 1
Page 193
CUTTING THE COUNTERBORE
Refer back to Figure 190.
Measure each counterbore depth as the recut is
being performed. The goal is to provide a depth
where only a single shim is necessary to obtain
the proper cylinder sleeve stand-up height.
1. Fill the oil fill tube with 30W nondetergent oil
to maintain lubrication during use.
2. Back off the lower depth-set collar two
increments or less, and tighten the
thumbscrew securely.
3. Cut the counterbore by turning the T-handle
clockwise while maintaining constant
downward pressure on the tool. Stop the
handle in a different position to avoid
creating a ridge in the counterbore.
4. Continue backing off the lower depth-set
collar, no more than two graduations per cut.
Check the depth measurement between
each adjustment. Plan to remove 0.001 inch
(0.025 mm) on the final cut to meet the final
predetermined counterbore depth. This
ensures achieving a very fine machined
finish.
5. Remove the tool from the cylinder bore.
a. Loosen the two cutter bit hold-down
capscrews and rotate the cutter bit
adjusting screw counterclockwise until
the cutter bit is retracted into the cutter
plate.
b. Remove the four machine hold-down
bolts and special washers.
c. Remove the tool from the cylinder bore.
6. Follow steps 1 through 5 for the remaining
cylinders.
COUNTERBORE DEPTH MEASUREMENT
Measure the counterbore depth (Figure 191) and
calculate the shims needed to obtain proper
cylinder sleeve stand-up height. Single shim
repairs should be performed whenever possible.
Shims can be ordered through the MACK Parts
System using part Nos. 505GC26P2, P3 ,P4,
P10, P12, P14, P20, P31 and P42. The shim “P”
number signifies shim thickness, i.e., P14 is
0.014-inch thick. The only exceptions to this are
the P30 which is 0.031 and P40 which is actually
0.042. When installing shims, always use the
thickest shims and the least amount of shims as
possible to obtain the proper sleeve stand-up
height. Use a single shim whenever possible, and
if it is necessary to use more than a single shim,
use the fewest shims possible. Also because very
thin shims can be displaced, avoid the use of the
0.002, 0.003 and 0.004 shim sizes whenever
possible.
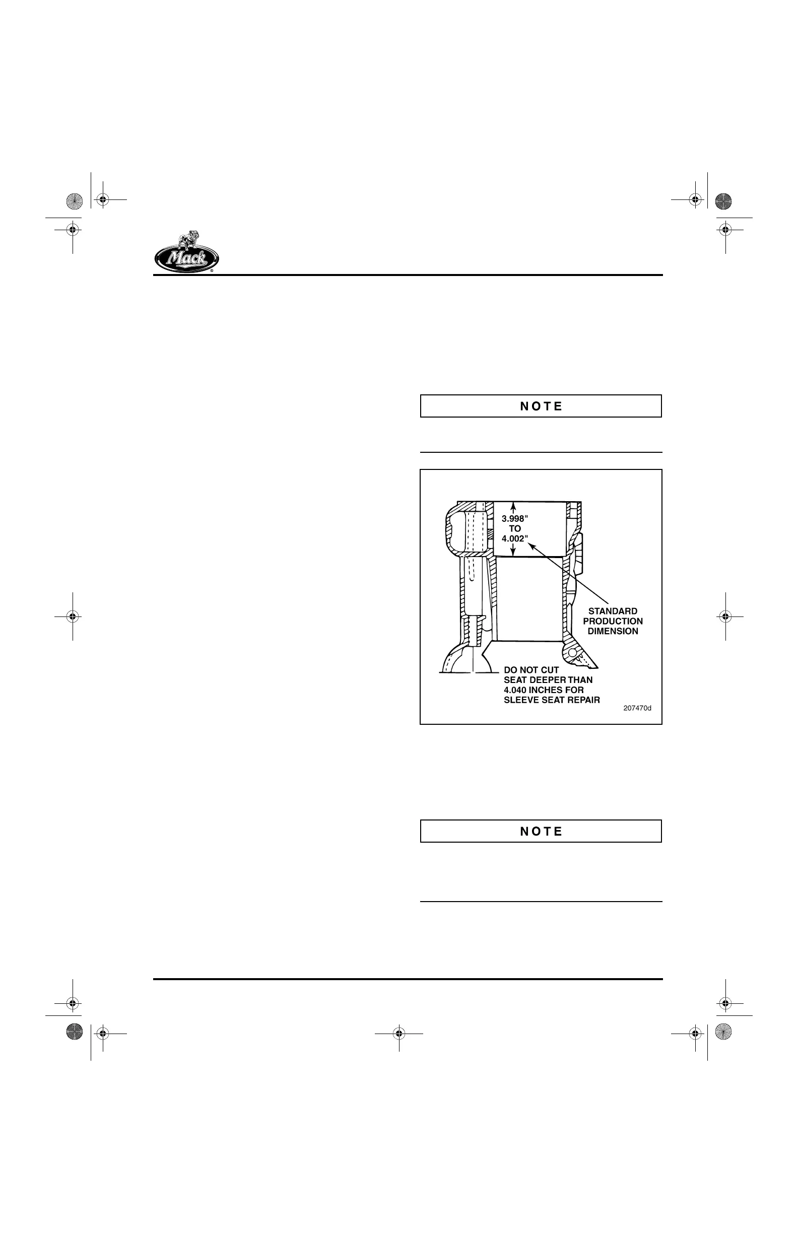
The current standard production counterbore
depth is 3.998–4.002 inches.
191
Figure 191 — Counterbore Depth Measurement
Effective March 2004, the nominal inside
diameter of all the shims was reduced by 0.064
(1.625 mm) (from 5.225 [132.715 mm] to 5.161
[131.089 mm]). This change allows for a better fit
between the shim and the liner.
If necessary, it is acceptable to use a combination
of shims having the 5.225 (132.715 mm) and the
5.161 (131.089 mm) inside diameters on the
same sleeve seat.
5-111.bk Page 193 Monday, July 10, 2006 2:26 PM

Table of Contents

Related product manuals