EasyManua.ls Logo

Rockwell Automation Allen-Bradley E300

Rockwell Automation Allen-Bradley E300
546 pages
To Next Page IconTo Next Page
To Next Page IconTo Next Page
To Previous Page IconTo Previous Page
To Previous Page IconTo Previous Page
Loading...
36 Rockwell Automation Publication 193-UM015D-EN-P - February 2015
Chapter 2 Installation and Wiring
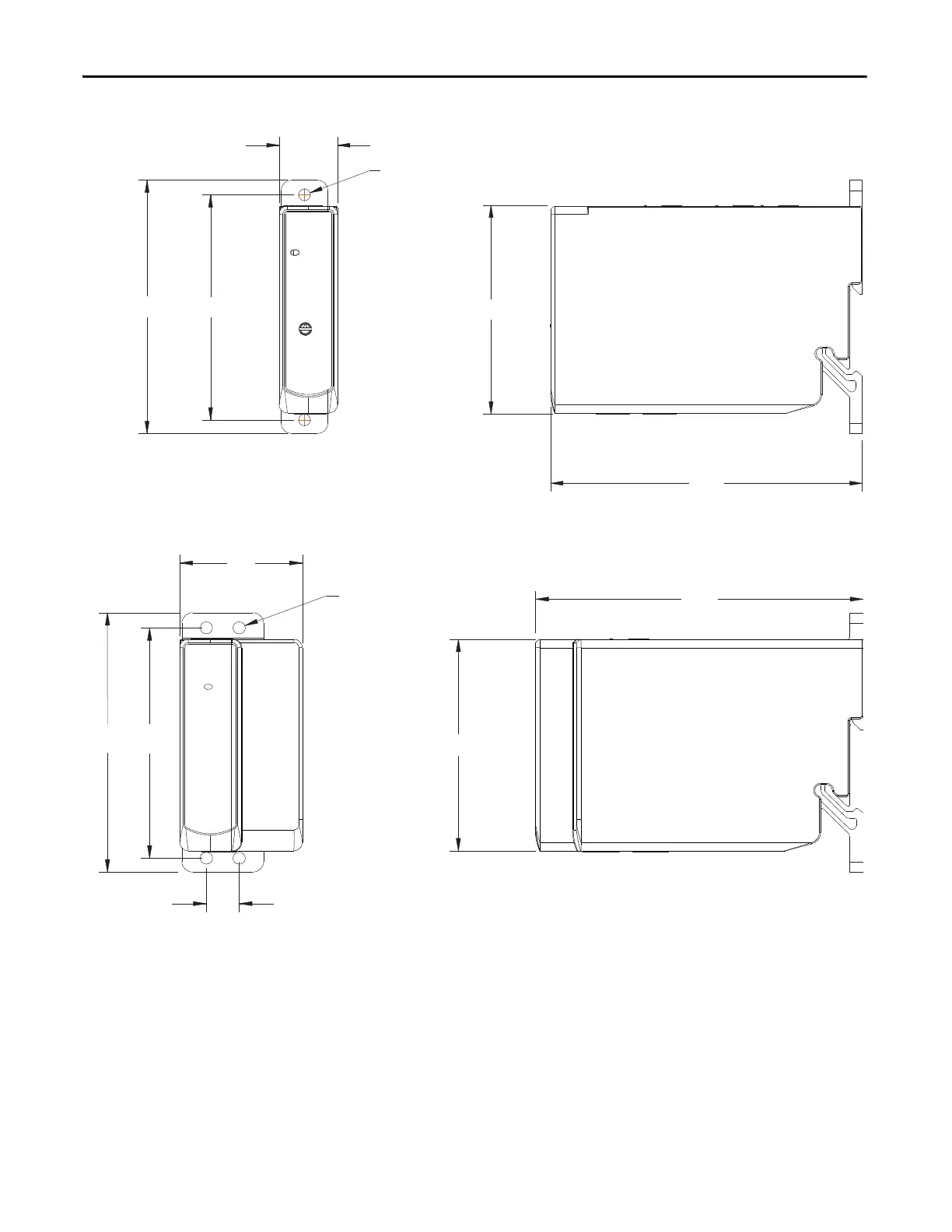
Figure 24 - E300 Expansion Analog Module 193-EXP-AIO
Figure 25 - E300 Expansion Power Supply 193-EXP-PS-___
2 x 4.5 (0.18) dia.
22.5
(0.89)
80.75 (3.18)
120
(4.73)
98 (3.86)
87 (3.43)
120
(4.73)
80.75 (3.18)
45
(1.77)
4x 4.5 (0.18) dia
98
(3.86)
87
(3.43)
12
(0.47)

Table of Contents

Related product manuals