EasyManua.ls Logo

Rockwell Automation Allen-Bradley E300

Rockwell Automation Allen-Bradley E300
546 pages
To Next Page IconTo Next Page
To Next Page IconTo Next Page
To Previous Page IconTo Previous Page
To Previous Page IconTo Previous Page
Loading...
Rockwell Automation Publication 193-UM015D-EN-P - February 2015 31
Installation and Wiring Chapter 2
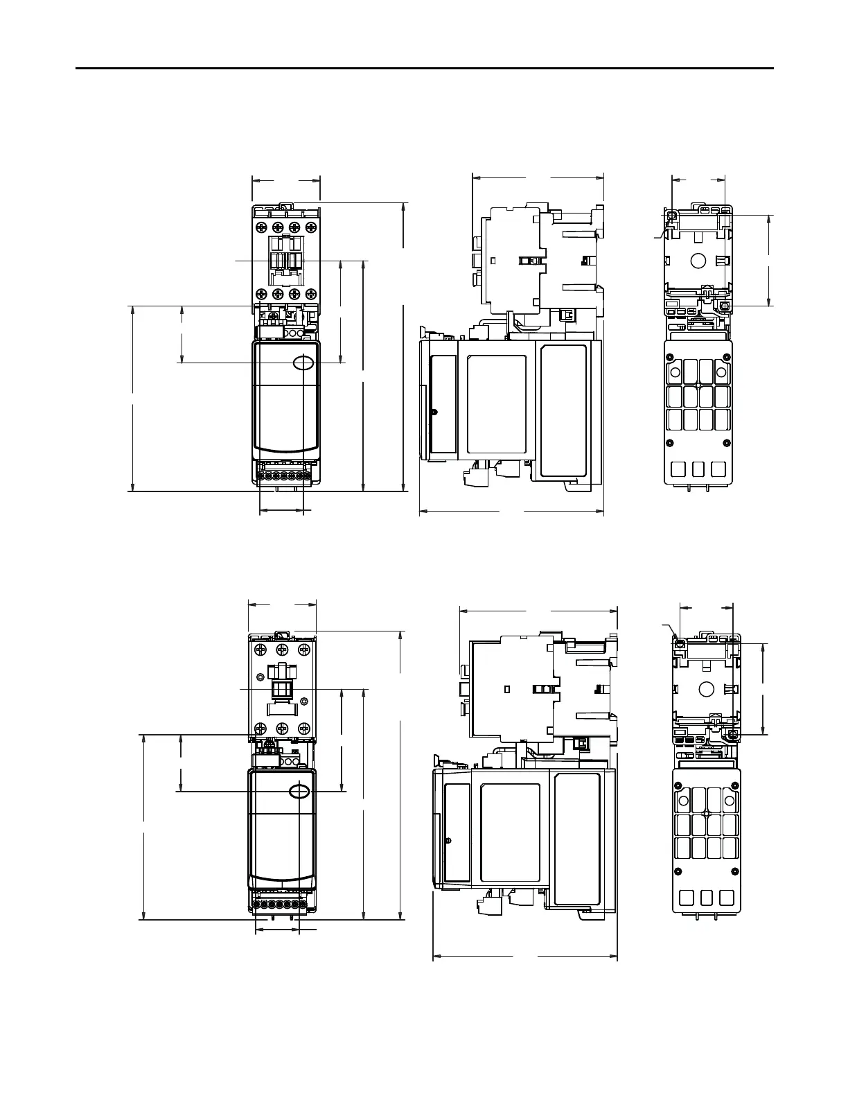
Starter Dimensions
Approximate dimensions are shown in millimeters (inches). Dimensions are not
intended to be used for manufacturing purposes.
Figure 14 - E300 Sensing Module 193-ESM-___-__-C23 with 100-C09…-C23 Contactor
Figure 15 - E300 Sensing Module 193-ESM-___-__-C55 with 100-C30…-C37 Contactor
45
(1.76)
87
(3.40)
60 (2.3
35
(1.37)
n 5 (0.18)
190 (7.49)
37 (1.47)
122 (4.81)
29 (1.14)
122
(4.78)
152 (5.98)
67 (2.65)
FROM
CONTACTOR
MTG. HOLE
FROM
CONTACTOR
MTG. HOLE
(ADD 5 mm (0.19 in.)
FOR CONTACTOR COIL
ON LINE SIDE)
37 (1.48)
122 (4.81)
29 (1.13)
190 (7.49)
67 (2.65)
152 (5.98)
45
(1.76)
122
(4.78)
104
(4.10)
35
(1.374)
60 (2.36)
n 5 (0.18)
(ADD 5 mm (0.19 in.)
FOR CONTACTOR COIL
ON LINE SIDE)
FROM
CONTACTOR
MTG. HOLE
FROM
CONTACTOR
MTG. HOLE

Table of Contents

Related product manuals