EasyManua.ls Logo

Rockwell Automation Allen-Bradley E300

Rockwell Automation Allen-Bradley E300
546 pages
To Next Page IconTo Next Page
To Next Page IconTo Next Page
To Previous Page IconTo Previous Page
To Previous Page IconTo Previous Page
Loading...
32 Rockwell Automation Publication 193-UM015D-EN-P - February 2015
Chapter 2 Installation and Wiring
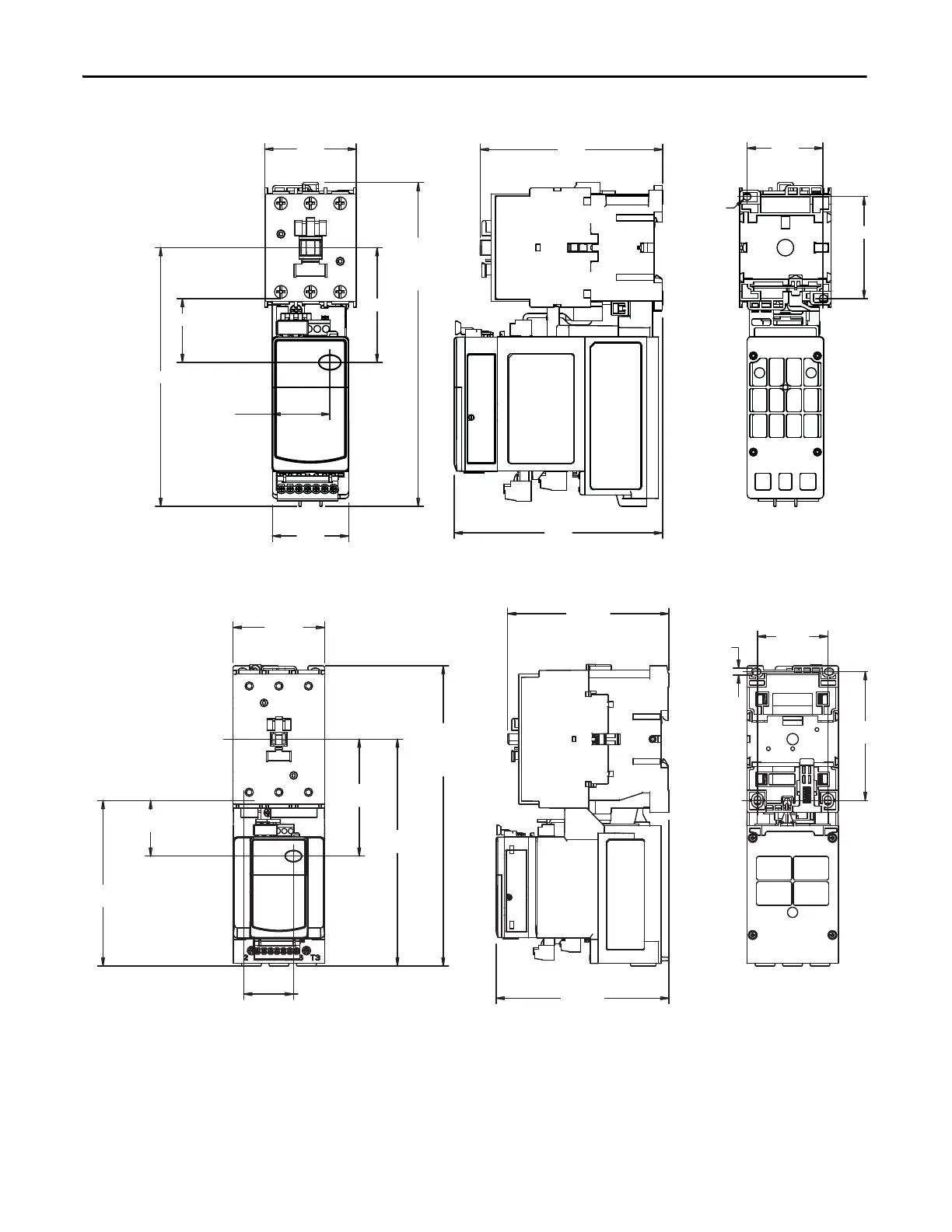
Figure 16 - E300
Sensing Module 193-ESM-___-__-C55 with 100-C43…-C55 Contactor
Figure 17 - E300
Sensing Module 193-ESM-___-__-C97 with 100-C60…-C97 Contactor
54
(2.12)
45 (1.76)
190 (7.49)
107
(4.21)
60 (2.
45 (1.75)
n 5 (0.18)
37 (1.48)
34 (1.34)
122
(4.82)
152 (5.98)
67 (2.65)
FROM
CONTACTOR
MTG. HOLE
FROM
CONTACTOR
MTG. HOLE
(ADD 5 mm (0.19 in.)
FOR CONTACTOR COIL
ON LINE SIDE)
2.82
(71.6)
1.71
(43.5)
5.10
129.5)
1.53
(38.9)
3.60
(91.6)
6.99
(177.6)
9.26
(235.1)
(ADD 0.24 FOR
CONTACTOR COIL
ON LINE SIDE)
4.97
(126.2)
5.32
(135.2)
3.98
(101)
0.21
(5.4)
2.165
(55)
FROM
CONTACTOR
MTG. HOLE
FROM
CONTACTOR
MTG. HOLE

Table of Contents

Related product manuals