EasyManua.ls Logo

Rockwell Automation Allen-Bradley E300

Rockwell Automation Allen-Bradley E300
546 pages
To Next Page IconTo Next Page
To Next Page IconTo Next Page
To Previous Page IconTo Previous Page
To Previous Page IconTo Previous Page
Loading...
34 Rockwell Automation Publication 193-UM015D-EN-P - February 2015
Chapter 2 Installation and Wiring
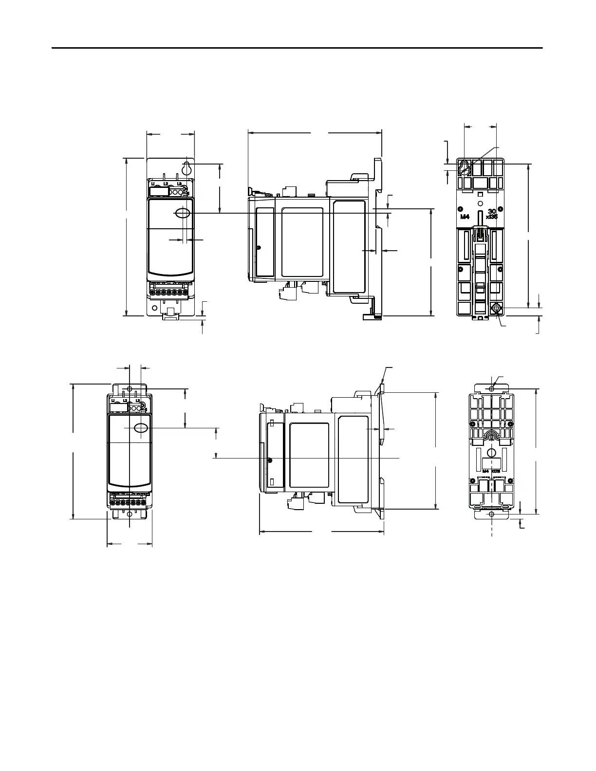
DIN Rail / Panel Mount
Dimensions
Approximate dimensions are shown in millimeters (inches). Dimensions are not
intended to be used for manufacturing purposes.
Figure 20 - E300 Sensing Module 193-ESM-___-30A-E3T and 193-ESM-___-60A-E3T
Figure 21 - E300 Sensing Module 193-ESM-___-30A-T and 193-ESM-___-60A-T
45
(1.764)
135 (5.32)
30
(1.18)
n 5 (0.17)
6 (0.24)
6 (0.217)
9 (0.33)
148 (5.83)
4 (0.154)
46 (1.81)
4 (0.14)
126
(4.94)
101 (3.96)
4 (0.16)
8 (0.30)
q
5.32
(135)
WITH MTG. FEET
0.18
(4.5)
4.921
(125)
0.197
(5)
n 0.189 (4.8)
4.58
(116.2)
W/O MTG. FEET
1.53
(39)
0.45
(11.35)
1.19
(30.1)
1.76
(45)
4.88
(124)
SHOWN WITH PANEL MOUNT FEET ACCESSORY
q
Mount feet accessory Cat. No.: 140M-C-N45

Table of Contents

Related product manuals