EasyManua.ls Logo

Rockwell Automation Allen-Bradley E300

Rockwell Automation Allen-Bradley E300
546 pages
To Next Page IconTo Next Page
To Next Page IconTo Next Page
To Previous Page IconTo Previous Page
To Previous Page IconTo Previous Page
Loading...
Rockwell Automation Publication 193-UM015D-EN-P - February 2015 33
Installation and Wiring Chapter 2
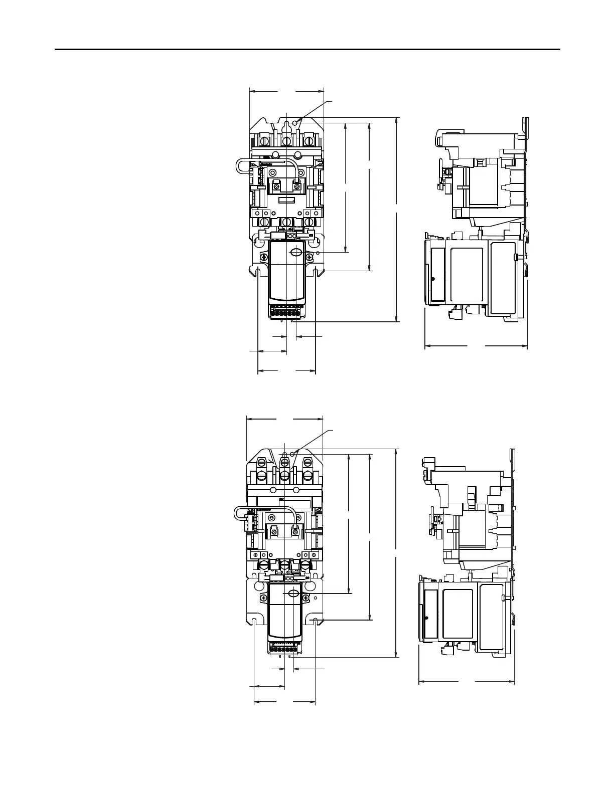
Figure 18 - E300 Sensing Module 592-ESM-___-__-S2 with NEMA Contactor Size 0 and Size 1
Figure 19 - E300 Sensing Module 592-ESM-___-__-S2 with NEMA Contactor Size 2
180 (7.06)
157 (6.17)
249 (9.78)
35 (1.38)
70
(2.75)
12 (0.46)
n 6 (0.22)
90
(3.56)
125
(4.91)
219 (8.63)
184 (7.24)
276 (10.85)
n 6 (0.22)
100
(3.94)
40 (1.58)
80
(3.15)
125
(4.91)
12 (0.46)

Table of Contents

Related product manuals