EasyManua.ls Logo

Rockwell Automation Allen-Bradley E300

Rockwell Automation Allen-Bradley E300
546 pages
To Next Page IconTo Next Page
To Next Page IconTo Next Page
To Previous Page IconTo Previous Page
To Previous Page IconTo Previous Page
Loading...
Rockwell Automation Publication 193-UM015D-EN-P - February 2015 35
Installation and Wiring Chapter 2
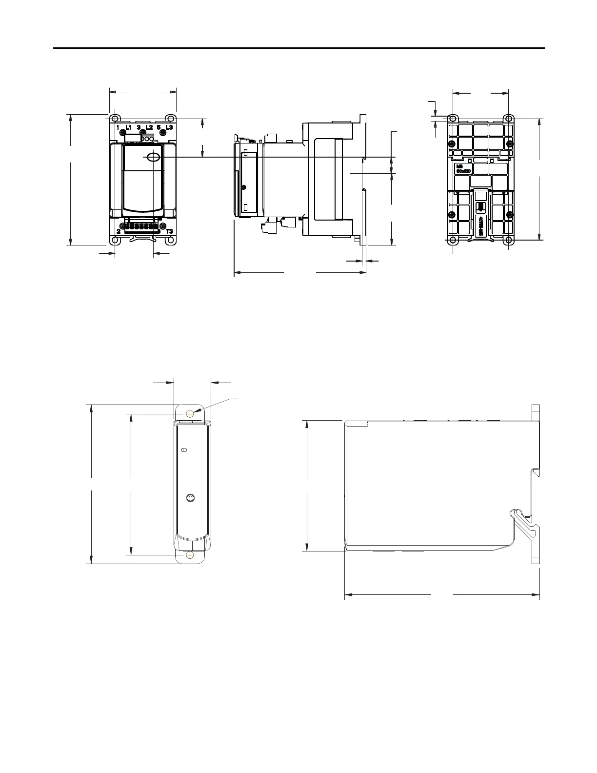
Figure 22 - E300 Sensing Module 193-ESM-___-100A-E3T
Expansion Bus Peripherals
Dimensions
Approximate dimensions are shown in millimeters. Dimensions are not intended
to be used for manufacturing purposes.
Figure 23 - E300
Digital Expansion Module 193-EXP-DIO-___
2.82
(71.6)
1.62
(41.2)
1.63
(41.4)
5.51
(139.9)
5.57
(141.5)
0.70
(17.7)
0.16
(4.05)
3.02
(76.6)
2.36
(60)
5.12
(130)
0.22
(5.5)
q
2 x 4.5 (0.18) dia.
22.5
(0.89)
80.75 (3.18)
120
(4.73)
98 (3.86)
87 (3.43)

Table of Contents

Related product manuals