EasyManua.ls Logo

sennebogen 830 E - Operating instruments

sennebogen 830 E
307 pages
Print Icon
To Next Page IconTo Next Page
To Next Page IconTo Next Page
To Previous Page IconTo Previous Page
To Previous Page IconTo Previous Page
Loading...
Operation - Operating instruments
6 - 7
830 / 07.2012
Original operating instructions
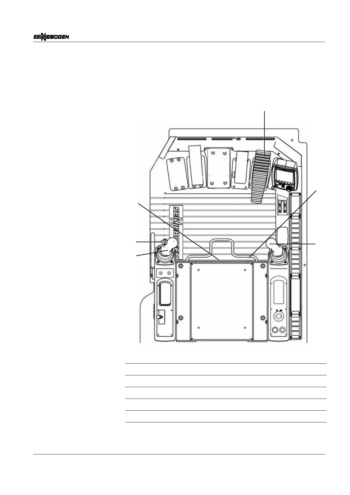
6.3 Operating instruments
6.3.1 Overview with joystick steering
Joy stick steering
Item Description
1 Pedals
4 Control lever, right
5 Seat adjustment
6 Control lever, left
7 Lower air outlet vents
8 Safety lever
1
4
5
6
8
7

Table of Contents