EasyManua.ls Logo

Siemens SINAMICS S120 - Page 131

Siemens SINAMICS S120
826 pages
To Next Page IconTo Next Page
To Next Page IconTo Next Page
To Previous Page IconTo Previous Page
To Previous Page IconTo Previous Page
Loading...
Line connection and line-side power components
3.9 Active Interface Modules internal air cooling
Booksize Power Units
Manual, (GH2), 07/2016, 6SL3097-4AC00-0BP8
131
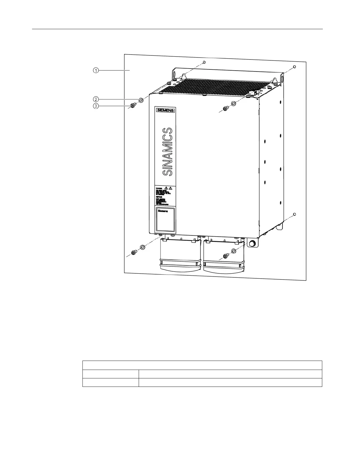
Mounting panel
Washer
M6 screws, Torx T30 (not hexagon-head screws)
Figure 3-62 Installation of 80 kW or 120 kW Active Interface Module
Tightening torque
for all screws: 6 Nm
Table 3- 25 Protective conductor connection
Active Interface Module
16 kW, 36 kW, 55 kW
Threaded hole M6 / 6 Nm
80 / 120 kW
Threaded hole M8 / 13 Nm

Table of Contents

Other manuals for Siemens SINAMICS S120

Related product manuals