EasyManua.ls Logo

Ski-Doo TOURING E LT 1997 - Sport and Touring Suspension

Ski-Doo TOURING E LT 1997
926 pages
Print Icon
To Next Page IconTo Next Page
To Next Page IconTo Next Page
To Previous Page IconTo Previous Page
To Previous Page IconTo Previous Page
Loading...
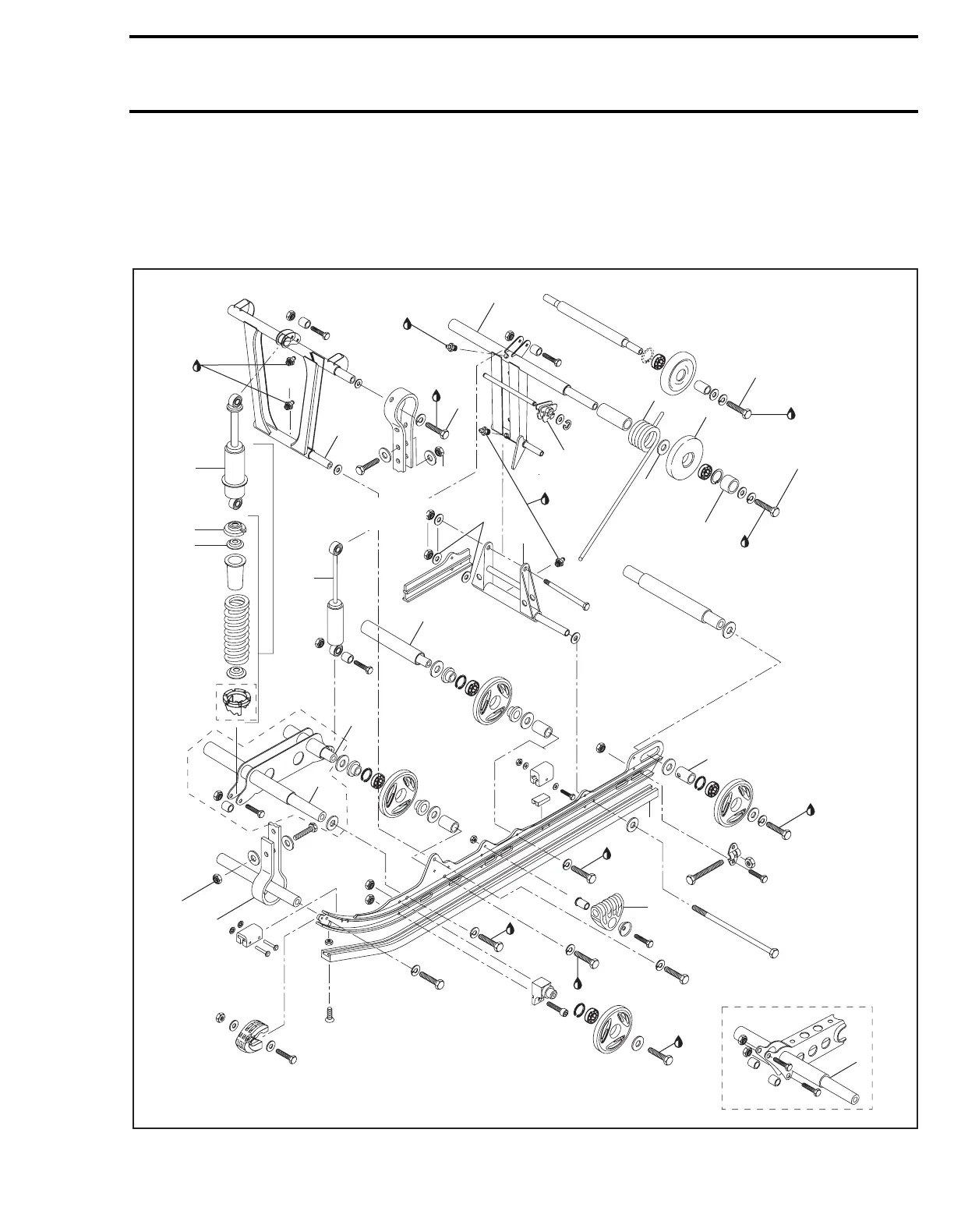
Section 06 REAR SUSPENSION
Sub-Section 03 (SC-10 SPORT AND TOURING SUSPENSION)
06-03-1
SC-10 SPORT AND TOURING
SUSPENSION 3
S-Series
A03F24S
Short track models only
Long track
models only
SLE
only
Loctite
271
Loctite
271
Loctite
271
Loctite
271
Loctite
271
Loctite
271
Loctite
271
Loctite
271
Low
temp.
grease
6
5
6
7
4
3
2
1
6
19
Low
temp.
grease
8
9
16
Low
temp.
grease
11
12
13
14
15
11
11
11
16
20
18
10
17
11
18 N•m
(160 lbf•in)
FLAT RATE
PARTS

Table of Contents

Related product manuals