EasyManua.ls Logo

Transtech SealCup Express - Mounting Schematic

Transtech SealCup Express
178 pages
Print Icon
To Next Page IconTo Next Page
To Next Page IconTo Next Page
To Previous Page IconTo Previous Page
To Previous Page IconTo Previous Page
Loading...
Technical Data 29
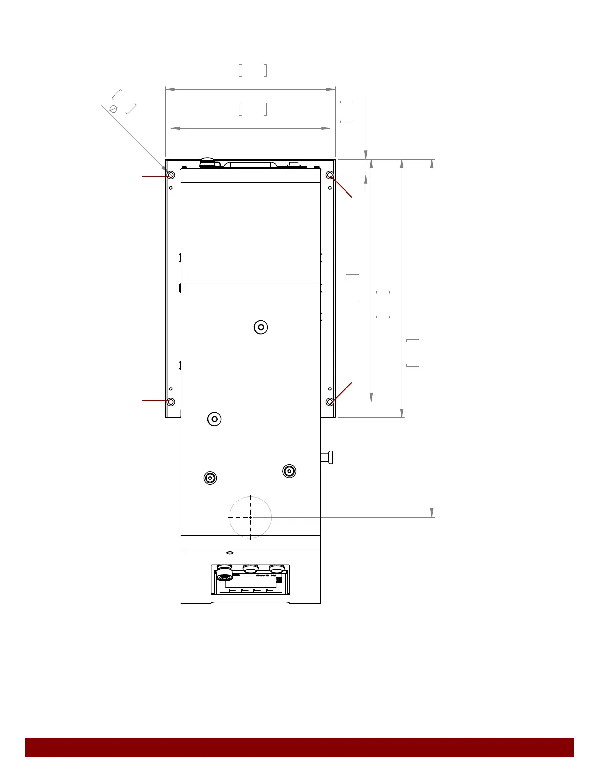
8.6 Mounting schematic
B
Pad position
C Socket holes
To secure the machine on a machine table, an M8 screw must be used in each socket
hole.











[


C
B
C
C
C

Table of Contents