EasyManua.ls Logo

YASKAWA A1000 Series - Page 73

YASKAWA A1000 Series
358 pages
Print Icon
To Next Page IconTo Next Page
To Next Page IconTo Next Page
To Previous Page IconTo Previous Page
To Previous Page IconTo Previous Page
Loading...
n
Flange Type Heat Loss Data
Table 2.22
Model 4A0414
Drive Model
Voltage
Class
Heat Loss (W)
Wt. kg (lb)ND (Fc = 2 kHz) HD (Fc = 8 kHz)
Internal External Total Internal External Total
4A0414 400 1295 3443 4738 1164 3578 4742 138 (304)
n
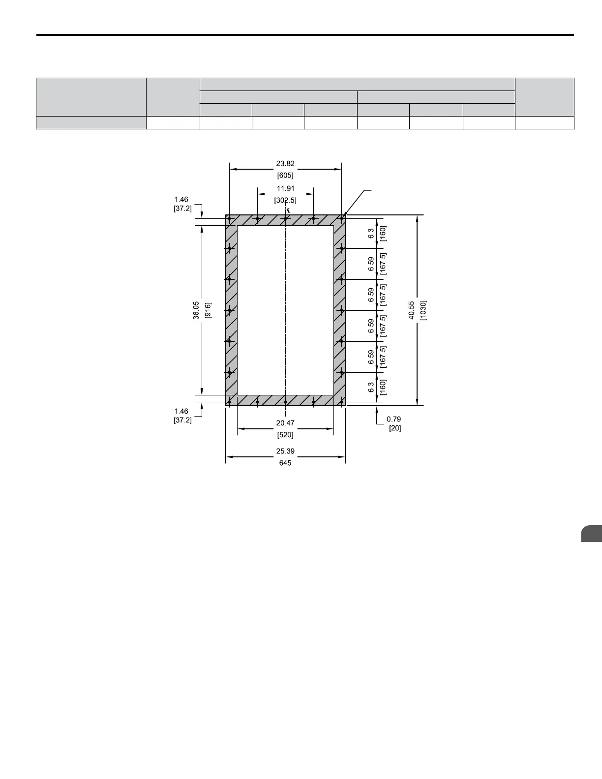
Flange Type Panel Cutout Dimensions for External Heatsink Mounting
CUTOUT
Unit: in. [mm]
NOTES:
1. CUTOUT TOLERANCES:
+/- 0.02 in. [0.5 mm]
2. EXPOSED HEATSINK DEPTH
3. MINIMUM RECOMMENDED PANEL
THICKNESS: 10 GA
D=5.19 in. [132 mm] MINUS PANEL THICKNESS
(20)-3/8 in. [M10]
THREADED HOLES
Figure 2.34 Model 4A0414
2.2 Flange Type Enclosure (NEMA 12 Backside) Dimensions & Heat Loss
YASKAWA ELECTRIC TOEP C710616 41G YASKAWA AC Drive - A1000 Quick Start Guide
73
2
Mechanical Installation

Table of Contents

Other manuals for YASKAWA A1000 Series

Related product manuals