EasyManua.ls Logo

Maeda MC285C-3 - Power Unit

Maeda MC285C-3
314 pages
Print Icon
To Next Page IconTo Next Page
To Next Page IconTo Next Page
To Previous Page IconTo Previous Page
To Previous Page IconTo Previous Page
Loading...
Section 4 ELECTRIC MOTOR COMPONENTS Mini-Crawler Crane M A E D A
4-112 1/2019 MC285C-3
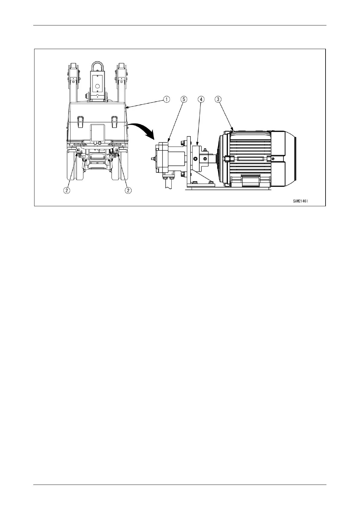
Power Unit
Fig. 4-297
1 - Power Unit Cover
2 - Electric Unit Transport Casters
3 - Electric Motor
4 - Coupling
5 - Hydraulic Pump

Table of Contents

Other manuals for Maeda MC285C-3

Related product manuals