EasyManua.ls Logo

Panasonic FP7 - When Setting Positioning Data in Standard Area by Programming

Panasonic FP7
275 pages
Print Icon
To Next Page IconTo Next Page
To Next Page IconTo Next Page
To Previous Page IconTo Previous Page
To Previous Page IconTo Previous Page
Loading...
18.2 Sample program
18-9
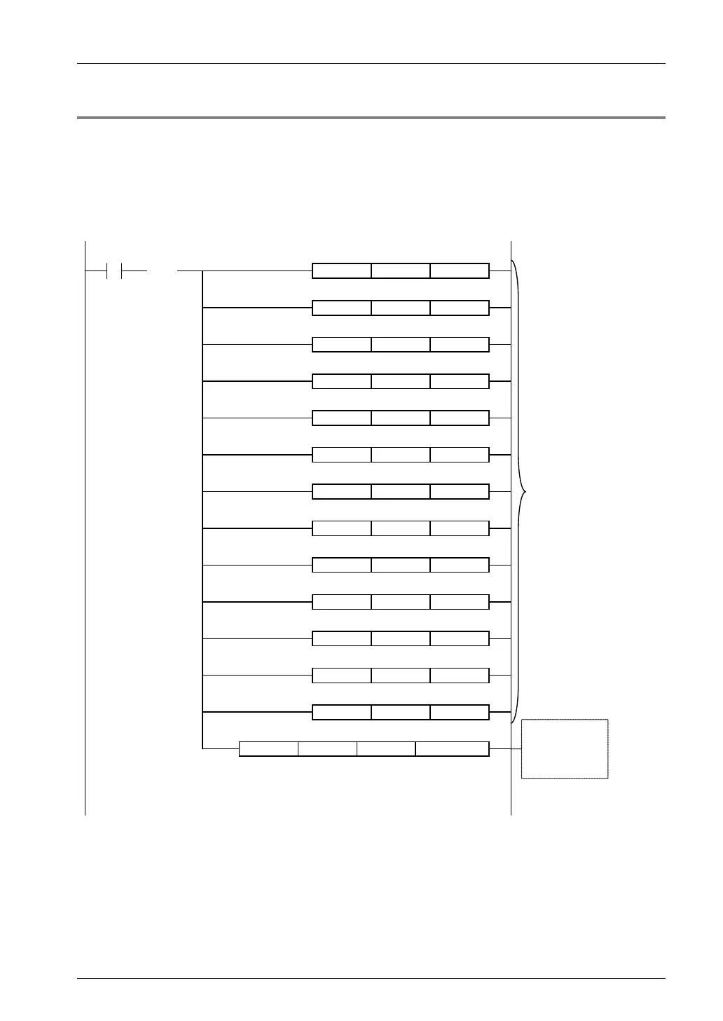
18.2.3 When Setting Positioning Data in Standard Area by Programming
Write positioning data in the standard area by programming.
Recalculating the positioning data is necessary after setting the positioning data.
Replace the part of the positioning start program in the sample program
Positioning start program
R11
Set value
change
MV.SS
1st axis control code
H0
DT10
1-table data on
1st axis
Settings for
table no. 1
(H00850) of 1st
axis
MV.SS H0 DT11
MV.SS H0 DT12
MV.SS H0 DT13
MV.SS
K100
DT14
MV.SS K100 DT15
1st axis control pattern
1st axis
acceleration time
1st axis
deceleration time
MV.SL
K500000
DT16
MV.SL K1000000 DT18
MV.SL K0 DT20
1st axis target speed
1st axis movement
amount
1st axis auxiliary point
MV.SS K0 DT22
MV.SS K0 DT23
MV.SS K0 DT24
MV.SS K0 DT25
1st axis dwell time
1st axis auxiliary output
BKMV.SS DT10 DT25 S1: UM00850
( )DF
Phone: 800.894.0412 - Fax: 888.723.4773 - Web: www.clrwtr.com - Email: info@clrwtr.com

Table of Contents

Related product manuals