EasyManua.ls Logo

RFL Electronics IMUX 2000 - Page 638

Default Icon
982 pages
Print Icon
To Next Page IconTo Next Page
To Next Page IconTo Next Page
To Previous Page IconTo Previous Page
To Previous Page IconTo Previous Page
Loading...
Because RFL and Hubbell® have a policy of continuous product improvement, we reserve the right to change designs and specications without notice.
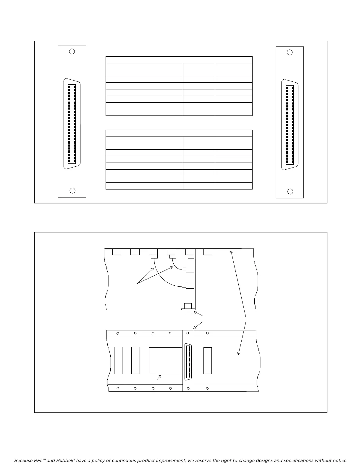
MA-301 PINOUTS
VOICE CHANNEL RING,
PIN #
TIP,
PIN #
MODULE 1, CHANNEL 1 1 26
MODULE 1, CHANNEL 2 2 27
MODULE 2, CHANNEL 1 9 34
MODULE 2, CHANNEL 2 10 35
MODULE 3, CHANNEL 1 17 42
MODULE 3, CHANNEL 2 18 43
MA-301C PINOUTS
VOICE CHANNEL RING,
PIN #
TIP,
PIN #
MODULE 1, CHANNEL 1 1 26
MODULE 1, CHANNEL 2 5 30
MODULE 2, CHANNEL 1 9 34
MODULE 2, CHANNEL 2 13 38
MODULE 3, CHANNEL 1 17 42
MODULE 3, CHANNEL 2 21 46
MA301C
MA301
Figure 1. MA-301 and MA-301C Module Adapters
TOP VIEW
RIBBON CABLES
MOTHERBOARD
REAR VIEW
MA301
RIBBON CABLES
MA301
Figure 2. Using an MA-301 Module Adapter with multiple RFL VF-15C modules.
RFL VF-15C RFL Electronics Inc.
August 7, 2012 6 (973) 334-3100

Table of Contents