EasyManua.ls Logo

RFL Electronics IMUX 2000 - Page 852

Default Icon
982 pages
Print Icon
To Next Page IconTo Next Page
To Next Page IconTo Next Page
To Previous Page IconTo Previous Page
To Previous Page IconTo Previous Page
Loading...
Because RFL and Hubbell® have a policy of continuous product improvement, we reserve the right to change designs and specications without notice.
RFL NCM RFL Electronics Inc.
Novem
b
er 1, 2012 6 (973) 334-3100
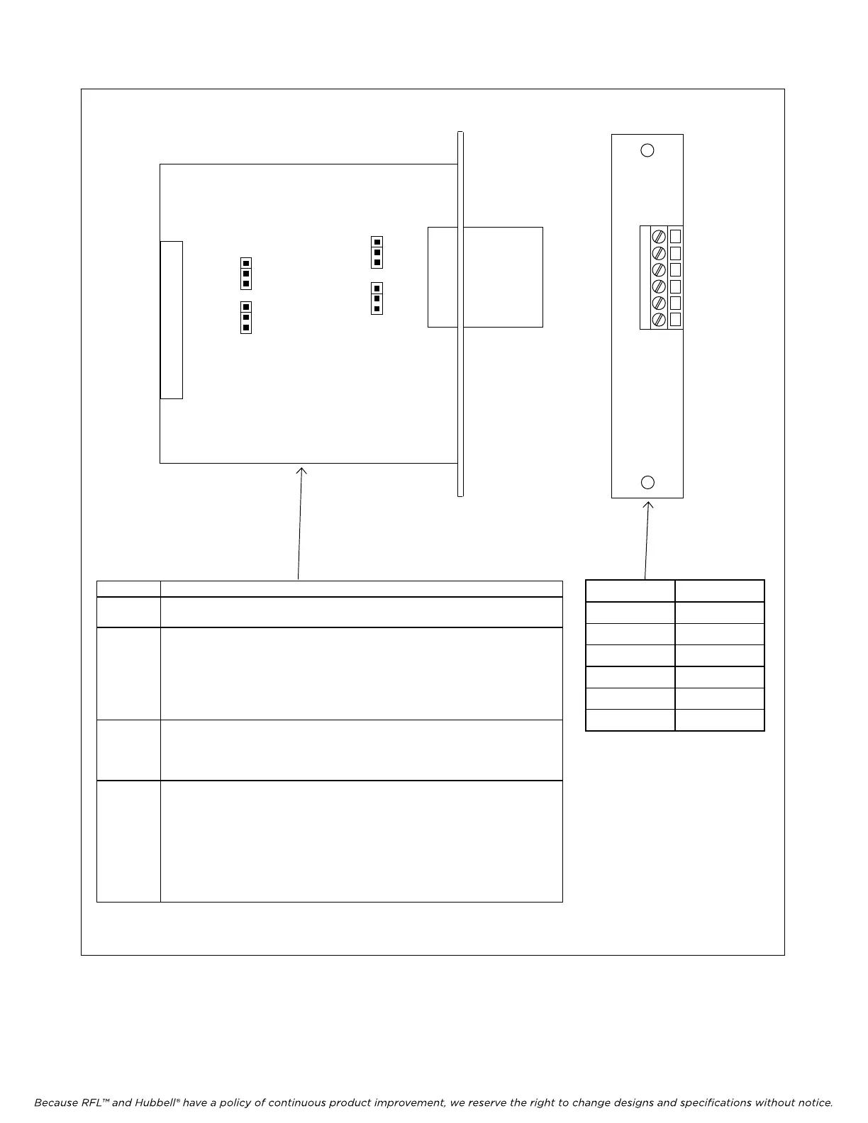
TB1 Pin No. Function
1 TDB (+)
2 TDA (-)
3 GND
4 RDB (+)
5 RDA (-)
6 GND
Figure 2. MA-485 Module adapter, jumper functions and TB1 pinouts
MA485
TB1
1
2
3
4
5
6
Jumper Function
J1 Selects 2W or 4W operation
J2 In 4W operation, selects MARK or HI-Z as follows:
In “MARK” position, forces the transmission of “All Marks”
when data is not being transmitted.
In “HI-Z” position, forces the output to a “high impedance” when data
is not being transmitted.
J3 In 4W operation, selects Rx path termination as follows:
In “IN” position, a 120Ω termination is inserted in the Rx path.
In “OUT” position, the Rx path remains unterminated.
J4 In 4W operation, selects Tx path termination as follows:
In “IN” position, a 120Ω termination is inserted in the Tx path.
In “OUT” position , the Tx path remains unterminated
In 2W operation, selects Tx & Rx path termination as follows:
In “IN” position, a 120Ω termination is inserted in the Tx & Rx paths.
In “OUT” position, the Tx & Rx paths remain unterminated.
4W IDLE OUT
MARK
HI-Z
4W
2W
TERMINATION
OUT
IN
OUT
IN
J2
J1
J4
J3
Note: For 2W use pins 1, 2, 3
For 4W use pins
1, 2, 4, 5, 6

Table of Contents