EasyManua.ls Logo

Volvo EC140E - Page 393

Volvo EC140E
425 pages
Print Icon
To Next Page IconTo Next Page
To Next Page IconTo Next Page
To Previous Page IconTo Previous Page
To Previous Page IconTo Previous Page
Loading...
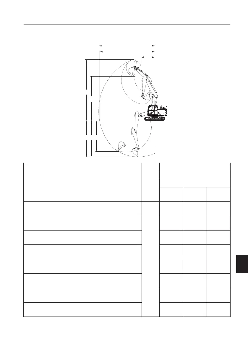
EC140E L with variable adjustable boom
G
F
E
D
HC
B
A
V1149077
Description Unit
Variable adjustable boom
4.6 m (15' 1")
Dipper arm
2.1 m
(6' 11")
2.5 m
(8' 2")
3.0 m
(9' 10")
A. Maximum digging reach
mm
ft in
8080
26' 6"
8460
27' 9"
8960
29' 5"
B. Maximum digging reach on ground
7930
26' 0"
8320
27' 4"
8830
29' 0"
C. Maximum digging depth
5080
16' 8"
5480
18' 0"
5980
19' 7"
D. Maximum cutting height
9270
30' 5"
9630
31' 7"
10110
33' 2"
E. Maximum dumping height
6730
22' 1"
7100
23' 4"
7570
24' 10"
F. Maximum vertical wall digging depth
3970
13' 0"
4340
14' 3"
4830
15' 10"
G. Minimum front swing radius
1740
5' 9"
1990
6' 6"
2410
7' 11"
H. Maximum digging depth
(level the ground of 2.44 m (8'))
4960
16' 3"
5360
17' 7"
5870
19' 3"
- Machine with direct fit bucket
Specifications
Working ranges
391

Table of Contents

Related product manuals