EasyManua.ls Logo

YASKAWA CR700

YASKAWA CR700
886 pages
To Next Page IconTo Next Page
To Next Page IconTo Next Page
To Previous Page IconTo Previous Page
To Previous Page IconTo Previous Page
Loading...
Mechanical & Electrical Installation
2
2.7 Install the Keypad in a Control Panel or Another Device
YASKAWA SIEPC71061723A YASKAWA AC Drive CR700 Technical Manual 43
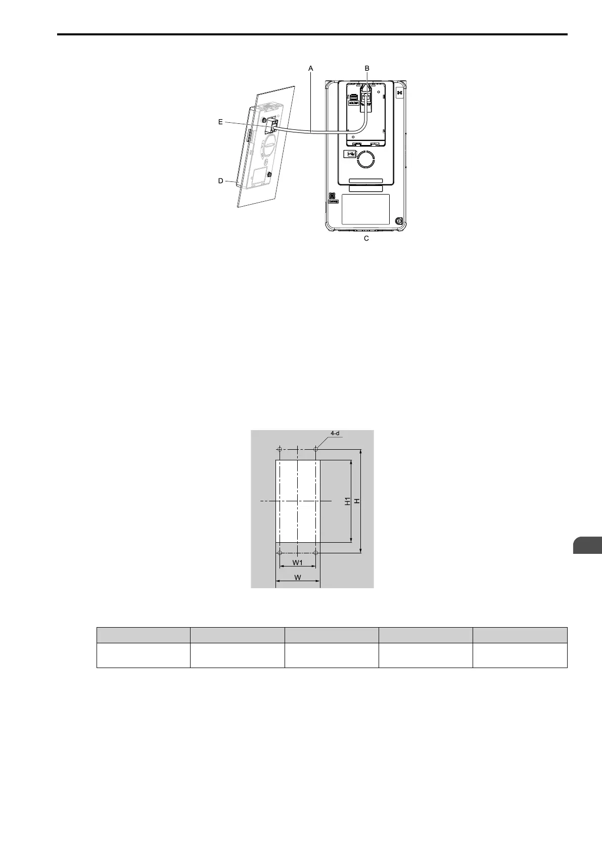
4. Use the extension cable to connect the drive to the keypad.
A - Extension cable
B - Communications connector
C - Drive
D - Keypad
E - Cable connector
Figure 2.14 Connecting the Drive and Keypad with the Extension Cable
Mount to the Inside of Control Panel
Installation support sets A or B (sold separately) are necessary for Internal/Flush-Mount installation. To order
optional accessories, contact Yaskawa or your nearest sales representative.
Note:
The installation procedure and panel cut-out dimensions are the same for mounting brackets A and B.
Use a gasket between the control panel and the keypad in environments with a large quantity of dust or other unwanted airborne
material.
1. Use the dimensions in
Figure 2.15 and Table 2.6 to cut an opening in the control panel for the keypad.
Figure 2.15 Panel Cut-Out Dimensions to Attach Inside Control Panel
Table 2.6 Panel Cut-Out Dimensions mm (in)
W H W1 H1 d
64 + 0.5
(2.52 + 0.02)
130
(5.12)
45
(1.77)
105 + 0.5
(4.13 + 0.02)
4.8
(0.12)
2. Remove the keypad and put the keypad connector in the holder on the front cover.
Note:
Insert the end of the keypad connector that has the tab.

Table of Contents

Other manuals for YASKAWA CR700

Related product manuals