EasyManua.ls Logo

Canon CLC5000 - Page 299

Canon CLC5000
757 pages
Print Icon
To Next Page IconTo Next Page
To Next Page IconTo Next Page
To Previous Page IconTo Previous Page
To Previous Page IconTo Previous Page
Loading...
2-260
COPYRIGHT
©
2001 CANON INC. 2000 2000 2000 2000 CANON CLC5000 REV.0 JAN. 2001
CHAPTER 2 NEW FUNCTIONS
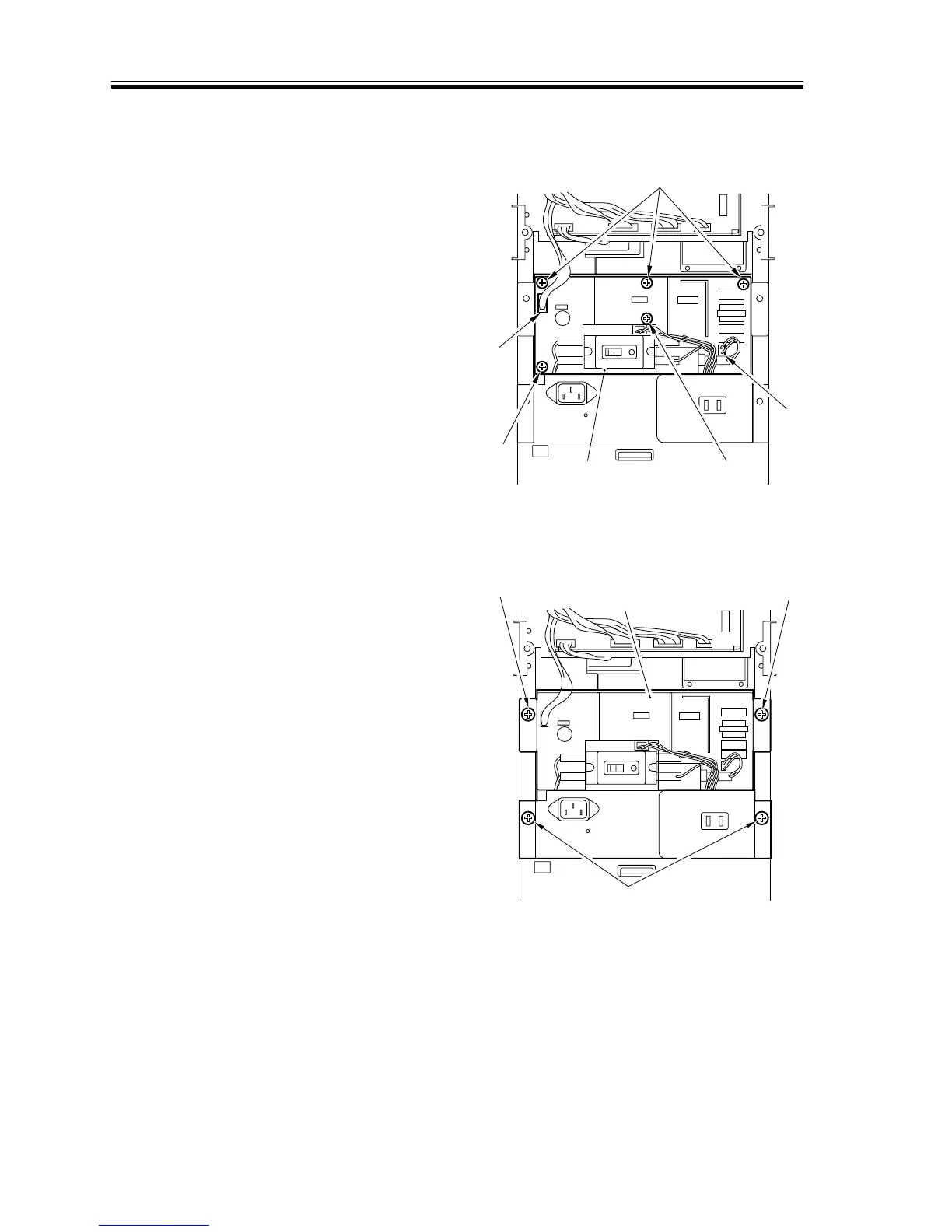
h.Removing the Power Supply Assembly
1) Remove the rear cover.
2) Disconnect the two connectors [1], and
remove the five screws [2]; then, detach
the power supply PCB [3].
F02-907-61
i. Removing the Noise Filter
1) Remove the rear cover.
2) Remove the four screws [1], and detach
the power supply mounting plate [2].
F02-907-62
[1]
[1]
[2]
[2]
[2]
[3]
[1] [1]
[1]
[2]

Table of Contents