EasyManua.ls Logo

Fujitsu PRIMERGY RX2520 M5 - Basic Information; Slots and Features

Fujitsu PRIMERGY RX2520 M5
508 pages
Print Icon
To Next Page IconTo Next Page
To Next Page IconTo Next Page
To Previous Page IconTo Previous Page
To Previous Page IconTo Previous Page
Loading...
10.2 Basic information
10.2.1 Slots and features
CSS
USB3.0
Front
ODD
OOB
Front
Panel 1
SATA ODD
USB2.0
Internal
PSU1
Slot OCP module
SSD2
M.2
M.2
SSD1
TPM
HDD LED 2
PSU 2
CTRL
FAN 1/2 FAN 5/6 FAN 9/10 FAN 11/12
CPU 2
CPU 1
VPP CPU1
VPP CPU2
JP3
Intrusion
USB3.0
Internal
ROC
LCD
PSU2 EXTPSU2 MAIN
SATA
4-7
SATA
0-3
Front Panel
2
PWR1 PWR2 PWR3 PWR4
Battery
CPU 2 DIMM 1K
CPU 2 DIMM 1L
CPU 2 DIMM 1M
CPU 1 DIMM 1C
CPU 1 DIMM 1B
CPU 1 DIMM 1A
CPU 1 DIMM 1D
CPU 1 DIMM 1E
CPU 1 DIMM 1F
CPU 2 DIMM 1J
CPU 2 DIMM 1H
CPU 2 DIMM 1G
VROC
HDD LED 1
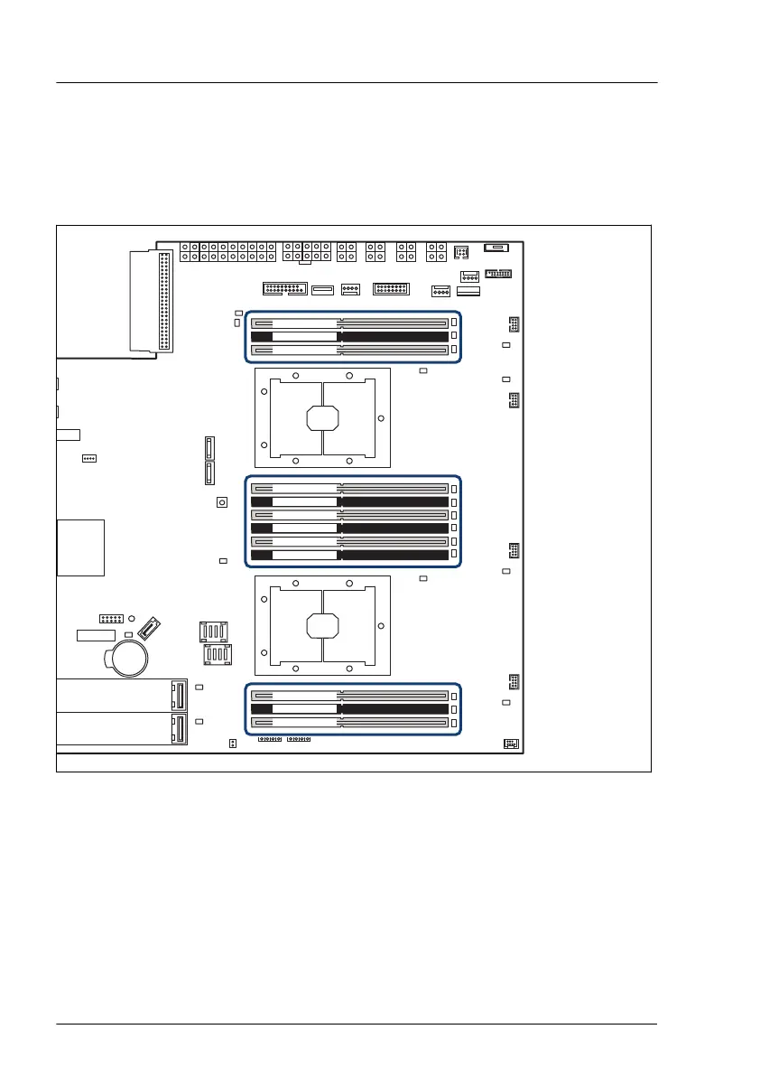
Figure 149: Slots of the main memory
Six channel DDR4 memory architecture (per CPU), 2 DIMMs per channel
12 memory DIMM sockets R3 (6 per CPU)
Supports RDIMM w/ ECC
Supports DDR4 up to 2933 MT/s
Up to 3TB/CPU using DDR4 DIMM (256 GB modules)
Main memory
258 Upgrade and Maintenance Manual RX2520 M5

Table of Contents

Other manuals for Fujitsu PRIMERGY RX2520 M5

Related product manuals