EasyManua.ls Logo

Fujitsu PRIMERGY RX2520 M5 - Connectors and Indicators; Connectors and Indicators on the System Board

Fujitsu PRIMERGY RX2520 M5
508 pages
Print Icon
To Next Page IconTo Next Page
To Next Page IconTo Next Page
To Previous Page IconTo Previous Page
To Previous Page IconTo Previous Page
Loading...
16.2 Connectors and indicators
16.2.1 Connectors and indicators on the system board
16.2.1.1
Connectors and indicators on the system board
Onboard connectors
CSS
USB3.0
Front
SERIAL
ODD
OOB
Front
Panel 1
SATA ODD
USB2.0
Internal
PSU1
JP2
JP1
Slot OCP module
Micro
SD
SSD2
M.2
M.2
SSD1
TPM
HDD LED 2
iRMC
S5
LAN
Management
VGA
LAN 1
LAN 1/M
USB 3.0
PSU 2
CTRL
FAN 1/2 FAN 5/6
FAN 9/10 FAN 11/12
CPU 2
CPU 1
VPP CPU1
VPP CPU2
JP3
LAN 1
LAN 2 /
USB 3.0
Slot 9 (CPU 2)
Slot 8 (CPU2)
Slot 2 (CPU 1)
Slot 1 (CPU 1)
Slot 4 (CPU 1) - slot riser card
Slot 3 (CPU 1)
JP7
JP8
Intrusion
USB3.0
Internal
ROC
LCD
PSU2 EXTPSU2 MAIN
SATA
4-7
SATA
0-3
Buzzer
iRMC
S5
Front Panel
2
PWR1 PWR2 PWR3 PWR4
Battery
CPU 2 DIMM 1K
CPU 2 DIMM 1L
CPU 2 DIMM 1M
CPU 1 DIMM 1C
CPU 1 DIMM 1B
CPU 1 DIMM 1A
CPU 1 DIMM 1D
CPU 1 DIMM 1E
CPU 1 DIMM 1F
CPU 2 DIMM 1J
CPU 2 DIMM 1H
CPU 2 DIMM 1G
VROC
HDD LED 1
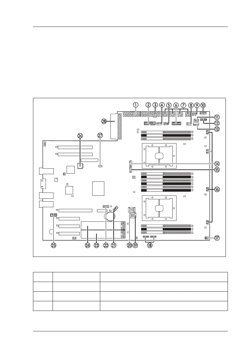
Figure 287: Onboard connectors of system board D3386
No. Print Description
1 PSU2 MAIN Connector for Power distribution board
2 PSU2 CTRL Connector for Power distribution board
3 PSU2 EXT Connector for Power distribution board
Appendix A
RX2520 M5 Upgrade and Maintenance Manual 437

Table of Contents

Other manuals for Fujitsu PRIMERGY RX2520 M5

Related product manuals