EasyManua.ls Logo

Hitachi H8/500 Series - Page 395

Hitachi H8/500 Series
459 pages
To Next Page IconTo Next Page
To Next Page IconTo Next Page
To Previous Page IconTo Previous Page
To Previous Page IconTo Previous Page
Loading...
386
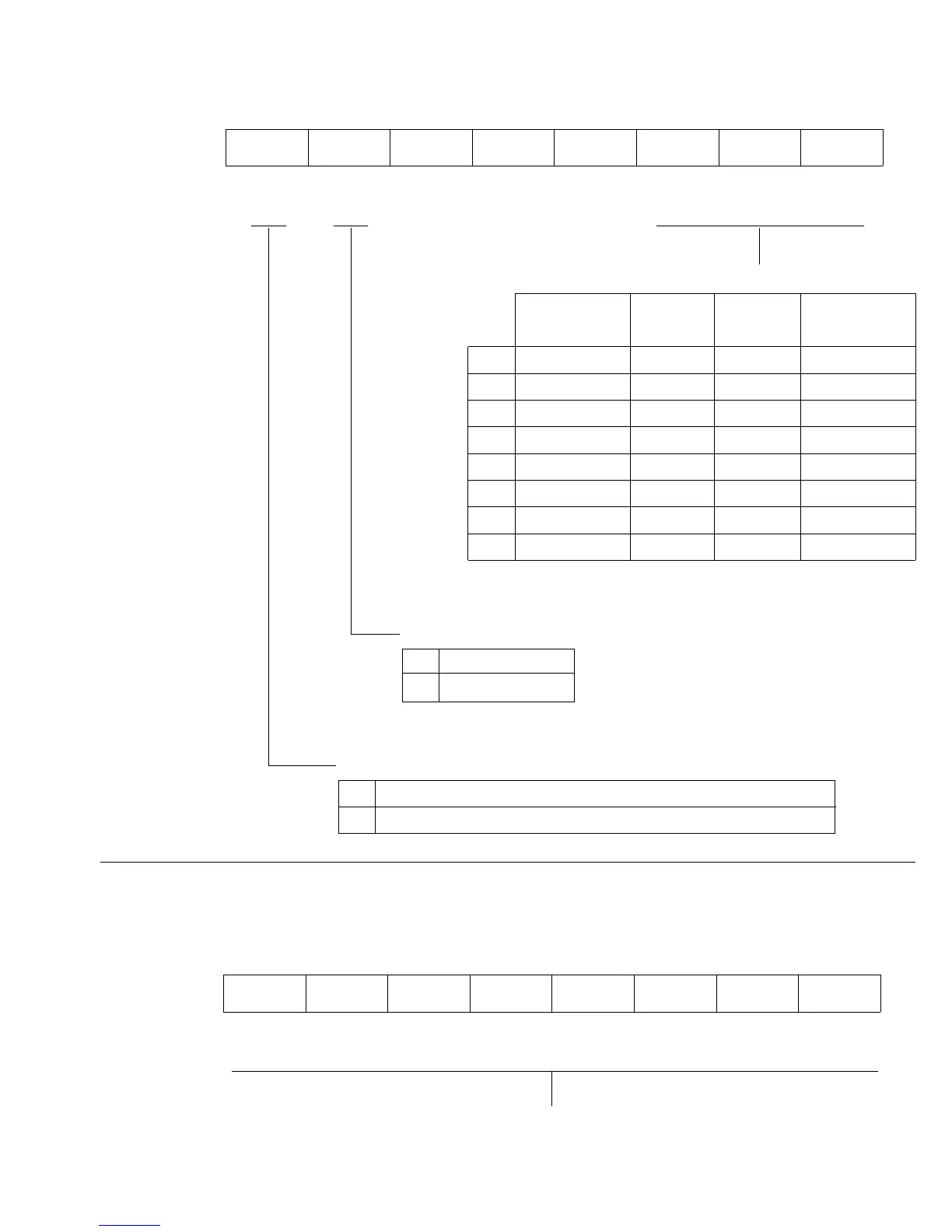
TCR—Timer Control Register H'FFC0 PWM1
Bit 76543210
OE OS CKS2 CKS1 CKS0
Initial value 00111000
Read/Write R/W R/W R/W R/W R/W
Clock Select (Values When ø = 10MHz)
Internal Reso- PW PW
Clock Freq. lution Period Frequency
000 ø/2 200ns 50µs 20kHz
001 ø/8 800ns 200µs 5kHz
010 ø/32 3.2µs 800µs 1.25kHz
011 ø/128 12.8µs 3.2ms 312.5kHz
100 ø/256 25.6µs 6.4ms 156.3Hz
101 ø/1024 102.4µs 25.6ms 39.1Hz
110 ø/2048 204.8µs 51.2ms 19.5Hz
111 ø/4096 409.6µs 102.4ms 9.8Hz
Output Enable
0 PW output disabled; TCNT cleared to H'00 and stops.
1 PW output enabled; TCNT runs.
Output Select
0 Positive logic
1 Negative logic
DTR—Duty Register H'FFC1 PWM1
Bit 76543210
Initial value 11111111
Read/Write R/W R/W R/W R/W R/W R/W R/W R/W
Pulse duty factor
Downloaded from Elcodis.com electronic components distributor

Table of Contents

Related product manuals