EasyManua.ls Logo

IFR COM-120C - Page 231

IFR COM-120C
326 pages
Print Icon
To Next Page IconTo Next Page
To Next Page IconTo Next Page
To Previous Page IconTo Previous Page
To Previous Page IconTo Previous Page
Loading...
6-56
SECTION 6
OPTIONS
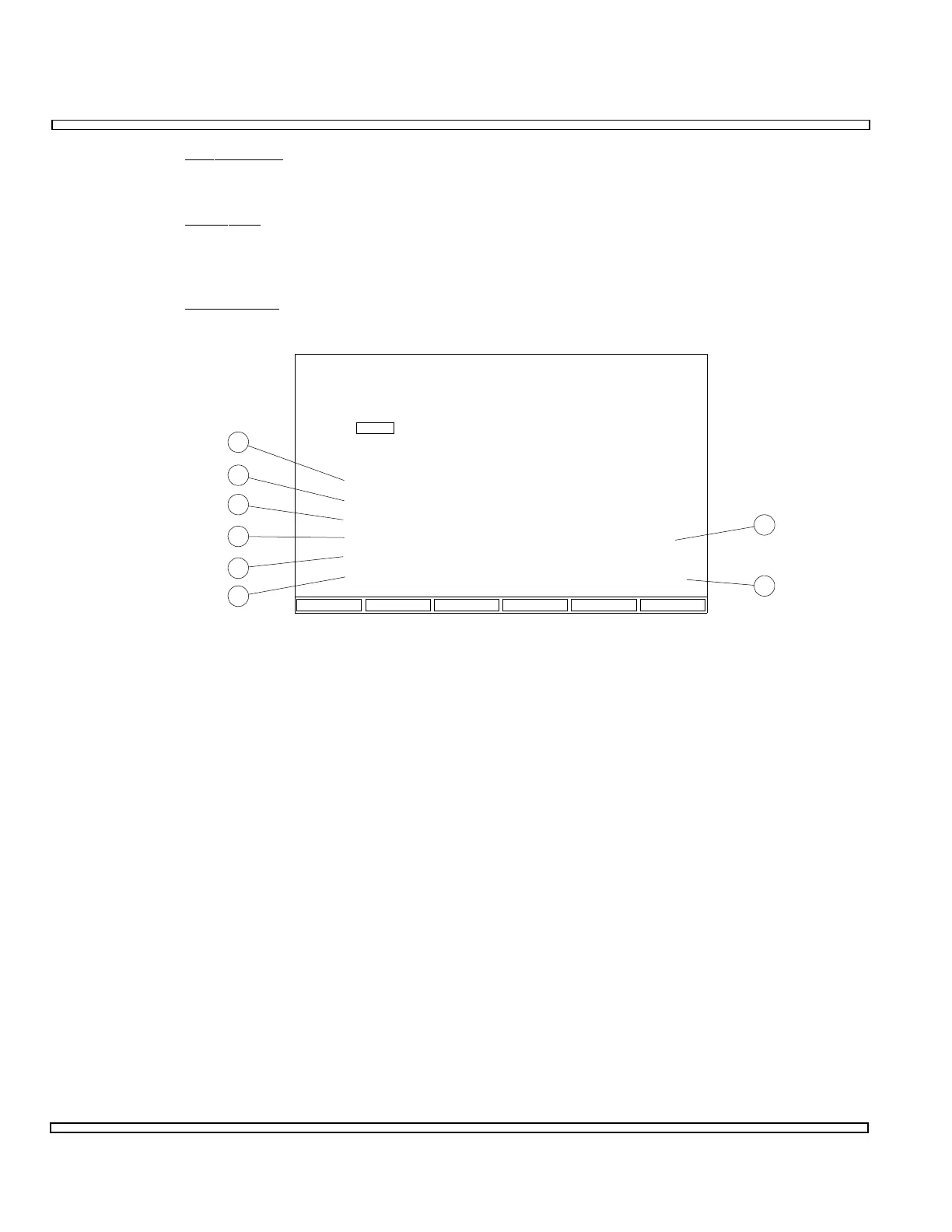
25. RF Freq Err
Displays error of Reverse Voice Channel Frequency received from Mobile Phone.
26. Ring
Dev
Displays Signal Tone Deviation received from Mobile Phone in response to Page
order.
27. Voice Chan
Displays Voice Channel designated to Mobile Phone by Test Set.
22
23
24
25
26
27
20
21
8717121
RETURN
AMPS Cellular
Automatic Test
Registration
Mobile Init
Cell Init
Handoff Test
Audio Test
FINISHED
FINISHED
FINISHED
FINISHED
FINISHED
Voice Chan:
Ring Dev:
RF Freq Err:
SAT Freq: 5970 Hz
9.56 KHz
0.05 KHz
300
9.57 KHzHangup Dev:
TX Pwr: 22.0 dBm
2.24 KHzSAT Dev:
ST Freq: 10.000 KHz

Table of Contents