EasyManua.ls Logo

Krone Big Pack 4x4 - 17 Appendix; Hydraulic System Circuit Diagrams; On-board Hydraulics for Medium Version Electronics

Krone Big Pack 4x4
332 pages
Print Icon
To Next Page IconTo Next Page
To Next Page IconTo Next Page
To Previous Page IconTo Previous Page
To Previous Page IconTo Previous Page
Loading...
Appendix
302
Pos: 42 /Überschrif ten/Überschrif ten 1/A-E/Anhang @ 1\mod_120227 8612285_78.doc x @ 58360 @ 2 @ 1
17 Appendix
Pos: 43 /Überschrif ten/Überschrif ten 2/F-J/Hydrauliksc haltplan @ 11\mod_1223527 787398_78.doc x @ 147580 @ @ 1
17.1 Hydraulic System Circuit Diagrams
Pos: 44 /BA/Anhang/ Großpackenpresse/Bord hydraulik für Mediu m-Elektronik HS Baurei he (2013-11-05 10:36: 41) @ 65\mod_1300345768 375_78.docx @ 583336 @ 2 @ 1
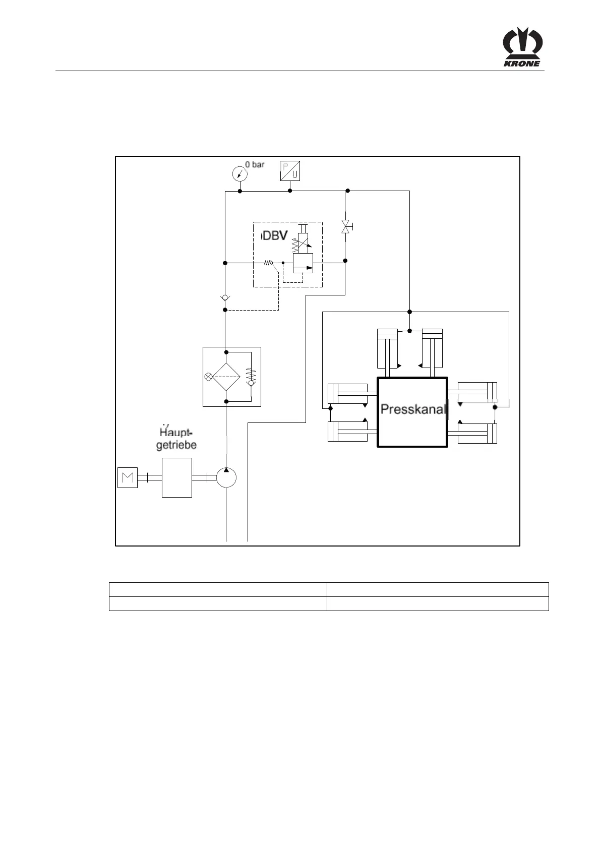
17.2 On-board Hydraulics for Medium Version Electronics
1)
3)
2)
Fig.211
1. Main gearbox 2. Bale channel
3. Pressure limiting valve
Pos: 45 /BA/----- ----------Sei tenumbruch-------- -------- @ 0\mod_1196175311 226_0.docx @ 4165 @ @ 1

Table of Contents

Related product manuals