EasyManua.ls Logo

NF BP4610 - Drawing of External Dimensions; Figure 8-10. Drawing of External Dimensions

Default Icon
218 pages
Print Icon
To Next Page IconTo Next Page
To Next Page IconTo Next Page
To Previous Page IconTo Previous Page
To Previous Page IconTo Previous Page
Loading...
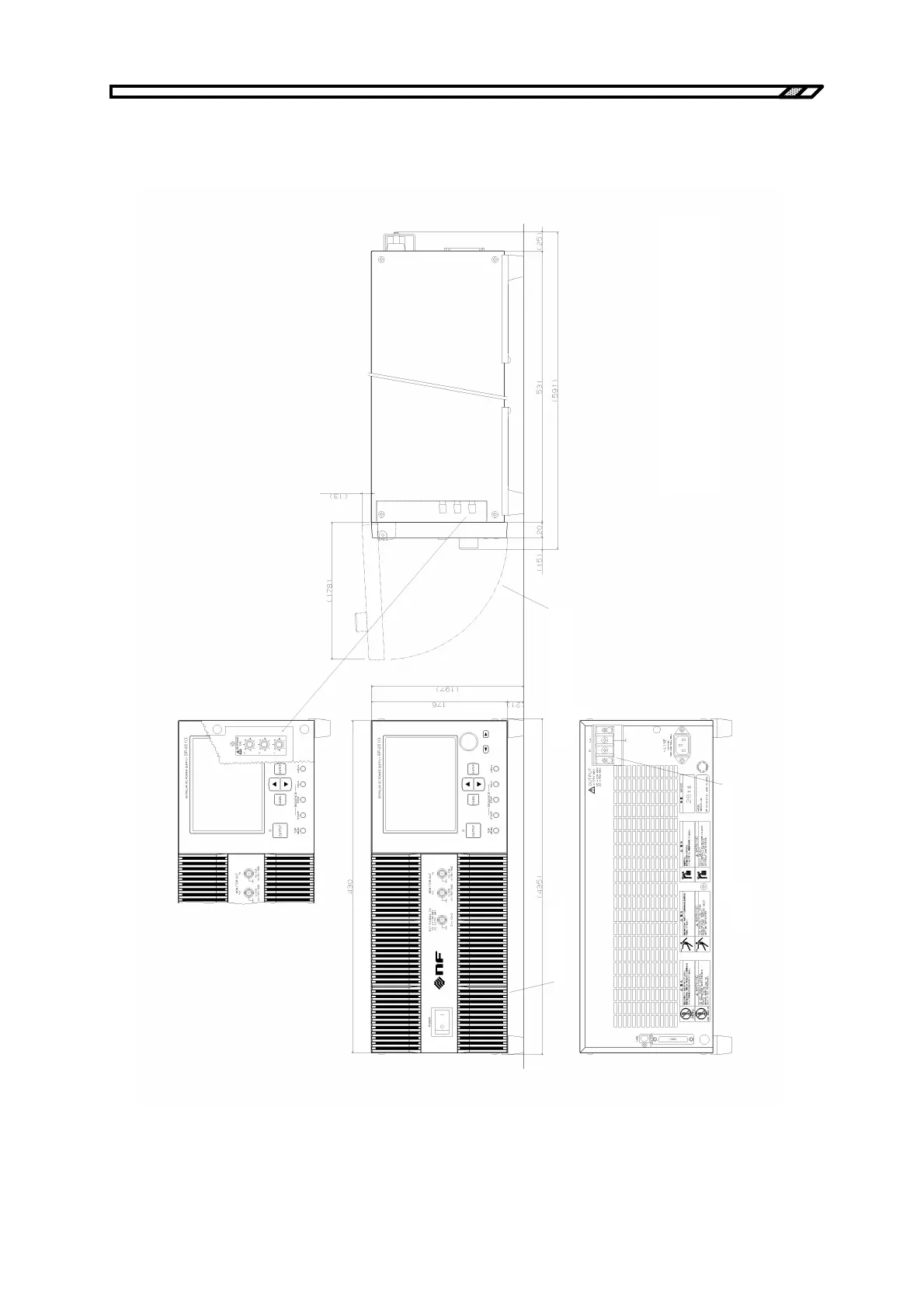
8.19 Drawing of External Dimensions
BP4610
8-16
8.19 Drawing of External Dimensions
Figure 8-10. Drawing of External Dimensions
Built-in air filter
When RESPONSE CAL
is being operated
With protective cover
Rear side
Surface processing
Front panel: Plastic molding, ultra light gray
(mansel 6. OPB9.2/0.1)
Cover: Laminated plastic panel, light gray
(mansel 6. OPB7.6/1.2)
Rear panel: Galvanized steel panel

Table of Contents