EasyManua.ls Logo

Matrix 0850 - Page 140

Matrix 0850
231 pages
Print Icon
To Next Page IconTo Next Page
To Next Page IconTo Next Page
To Previous Page IconTo Previous Page
To Previous Page IconTo Previous Page
Loading...
0850/0850-T1 User Manual
Matrix Machine Tool (Coventry) Limited 140 / 231
Edition: 08/2013
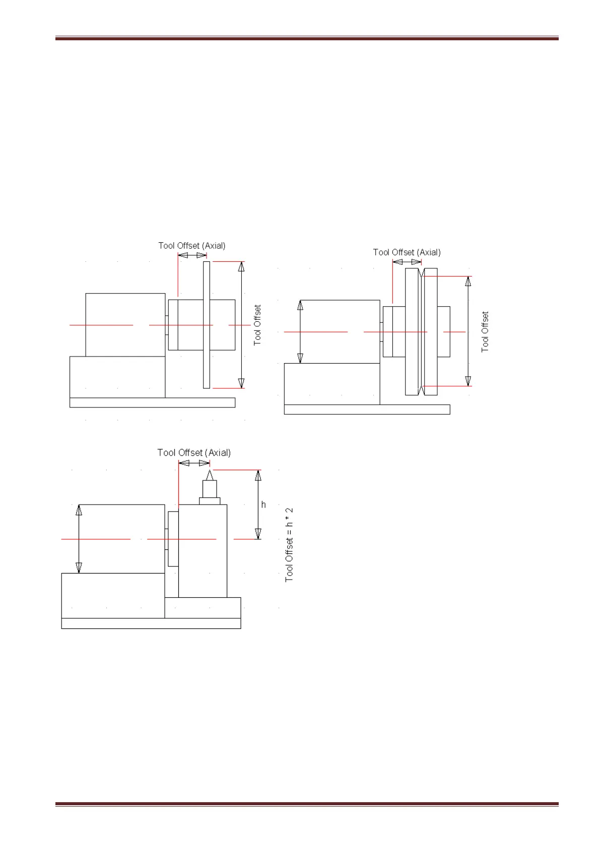
Tool Offset(axial)
Input range: -50 to 50 mm
Distance from the dresser datum face to the diamond media centreline (see sketch below).
Tool Offset
Input range: 0 to 150 mm
For a diamond disc this is the peripheral diameter of the disc.
For a diamond roll this is the profile diameter at the root.
For a single point diamond this is the 2x radial distance from dressing spindle centreline to the
diamond tip.
Diamond roll
Diamond disc
Single point diamond

Table of Contents

Related product manuals