EasyManua.ls Logo

Wintriss SmartPAC 2 - Figure 2-14. WPC 2000 Main Processor Board: Location of Important Components

Wintriss SmartPAC 2
604 pages
Print Icon
To Next Page IconTo Next Page
To Next Page IconTo Next Page
To Previous Page IconTo Previous Page
To Previous Page IconTo Previous Page
Loading...
1128600 SmartPAC 2 with WPC 2000 Integration User Manual
2-28 Installation
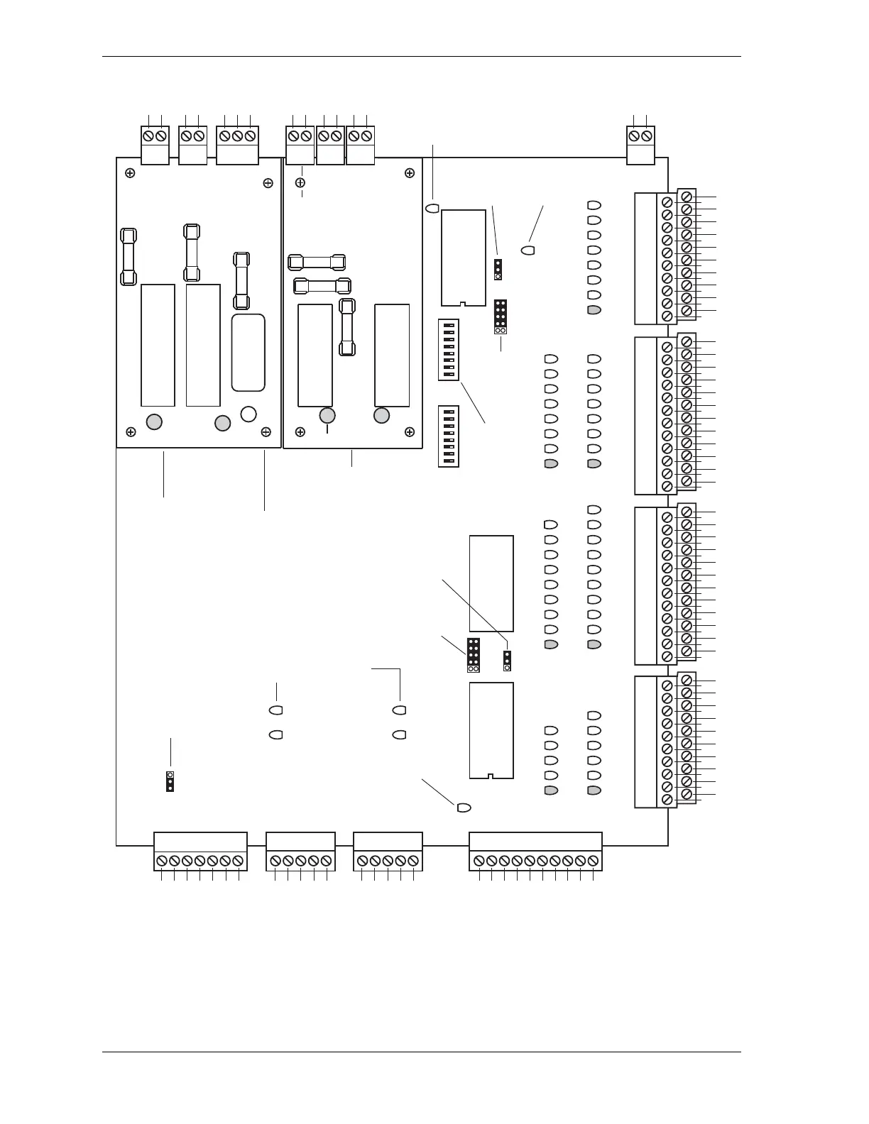
Figure 2-14. WPC 2000 Main Processor Board: Location of Important Components
TB 106
Resolver
TB 108
Display cable
TB 109
Cam outputs
TB 107
Serial port
TB 303
DS 302
DS 301
DS 303
TB 302 TB 301
TB 403
TB 402 TB 401
TB 105
Power
F 303
F 302
DSV/Lockout relay board
Aux. E-stop relay board
(Optional)
DS 401
DS 402
TB101
TB104
TB103
LEDs
LEDs
Hi/Lo speed
jumper
JP126
(underneath
DSV/Lockout
relay board)
Light
curtain A
output type
jumper
JP123
Hi/Lo speed
jumper
JP125
Transmit
DS1381
Receive
DS1371
Transmit
DS1421
Receive
DS1431
Serial
port LEDs
Display
cable LEDs
Light curtain B
test mode
jumper
JP122
+ 24V I/O
LED
DS150
+5V A processor
LED
DS149
Light curtain B
output type
jumper
JP121
Light curtain A
test mode
jumper
JP124
+5V B processor
LED
DS151
Option
switches
S101
Option
switches
S102
Green
OrangeGreen
Green
Green Orange
TB102
Green Orange
LO
HI
INT
EXT
PNP
NPN
RAM
chip
U102
A
pro-
cessor
chip
U111
ON
87654321
ON
87654321
B
pro-
cessor
chip
U134
INT
EXT
PNP
NPN
LED #
1
45
2
3
4
5
6
7
8
9
10
46
47
48
49
50
51
52
53
54
11
12
13
14
15
16
17
18
19
20
21
22
23
24
25
26
27
28
29
30
31
32
33
34
35
36
37
38
39
40
41
42
43
44
55
56
57
58
59
60
61
62
63
64
65
66
68
69
70
71
72
73
74
75
76
77
78
67
79
80
81
82
83
84
85
86
87
88
8990919293949596979899100101102103
105104 107106 109108 110 112111 114113 115 117116 119118 120 122121 124123 125 127126 129128 130
DSV ADSV B
1
6
5
4
3
2
1
8
7
6
5
4
3
2
9
10
1
8
7
6
5
4
3
2
1
8
7
6
5
4
3
2
Group 4Group 3
Group 1 Group 2
Group 5 Group 6
Group 7

Table of Contents

Other manuals for Wintriss SmartPAC 2