EasyManua.ls Logo

Wintriss SmartPAC 2 - Figure 2-25. Smartpac 2 Board: Location of Components

Wintriss SmartPAC 2
604 pages
Print Icon
To Next Page IconTo Next Page
To Next Page IconTo Next Page
To Previous Page IconTo Previous Page
To Previous Page IconTo Previous Page
Loading...
SmartPAC 2 with WPC 2000 Integration User Manual 1128600
Installation 2-51
5. Double-check connections when you are finished wiring.
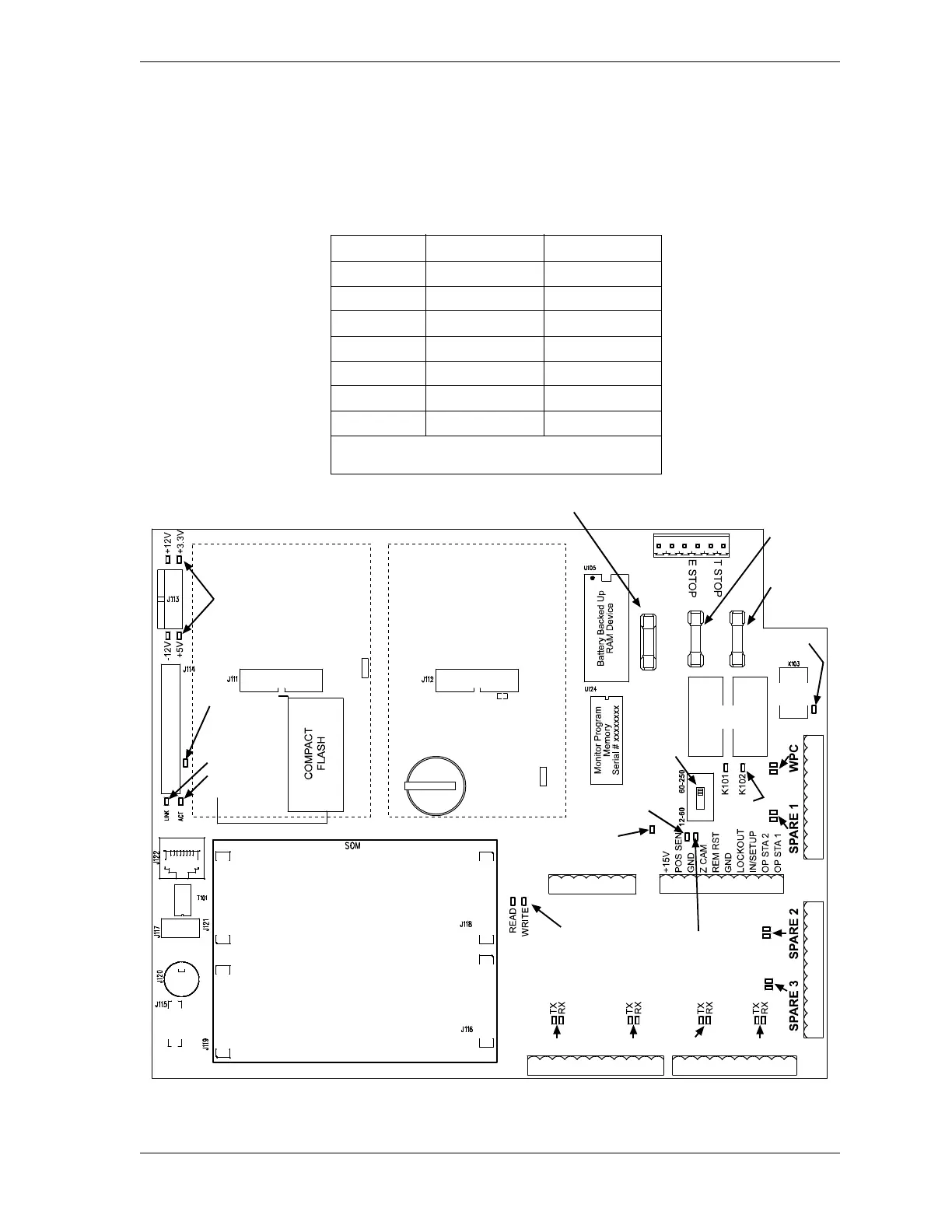
6. Locate jumper JP101 on the SmartPAC 2 board (see Figure 2-25), and move it to the
“Slave” position.
Table 2-15. SmartPAC 2 Resolver (TB101) Wiring
Pin # Signal Wire Color
212 Shield Shield
213 S1 Black*
214 S2 Green
215 R1 Red
216 S3 Yellow*
217 R2 Orange
218 S4 Brown
* Shown for clockwise rotation, facing shaft.
For counterclockwise, swap black and yellow wires.
Figure 2-25. SmartPAC 2 Board: Location of Components
TB101
RESOLVER
S101
TB105
TB106
TB102
TB107
TB104 TB103
AUX I/O
AB
JP101
MASTER
SLAVE
JP102
SPEED
LOW
HIGH
INPUT
CHECK
SWITCH
11
1
1
1
1
1
ProCam DiPro
PACNET
SPECIAL MODULE
SFI
E-STOP
RELAYS
POSITION
SENSOR
LED
TX
RX
TX
RX
TX
RX
TX
RX
USB PORT
LEDS
TOP
STOP
LED
POWER
LEDS
ETHERNET
ETHERNET LEDS
LINK
ACTIVITY
USB
INPUT
CHECK
LED
E-STOP
LEDS
COMPACT
FLASH
ACCESS LED
K101 K102
F101
F102 F103
INPUT CHECK
FUSE
E-STOP
FUSE
TOP STOP
FUSE
TOP
STOP
RELAY
PS/2
ZERO
CAM
LED
+
BATTERY

Table of Contents

Other manuals for Wintriss SmartPAC 2