EasyManua.ls Logo

ABB RED650 - Design; Technical Data; Local Human-Machine Interface (Local HMI); Transformer Input Module (TRM)

ABB RED650
926 pages
Print Icon
To Next Page IconTo Next Page
To Next Page IconTo Next Page
To Previous Page IconTo Previous Page
To Previous Page IconTo Previous Page
Loading...
22.2.3.2 Design
IP14278-1 v1
M6377-3 v2
There are two types of the power supply module. They are designed for different
DC input voltage ranges see table 617. The power supply module contains a built-
in, self-regulated DC/DC converter that provides full isolation between the
terminal and the external battery system.
The DC input is protected against inverse polarity within the rated DC voltage
range.
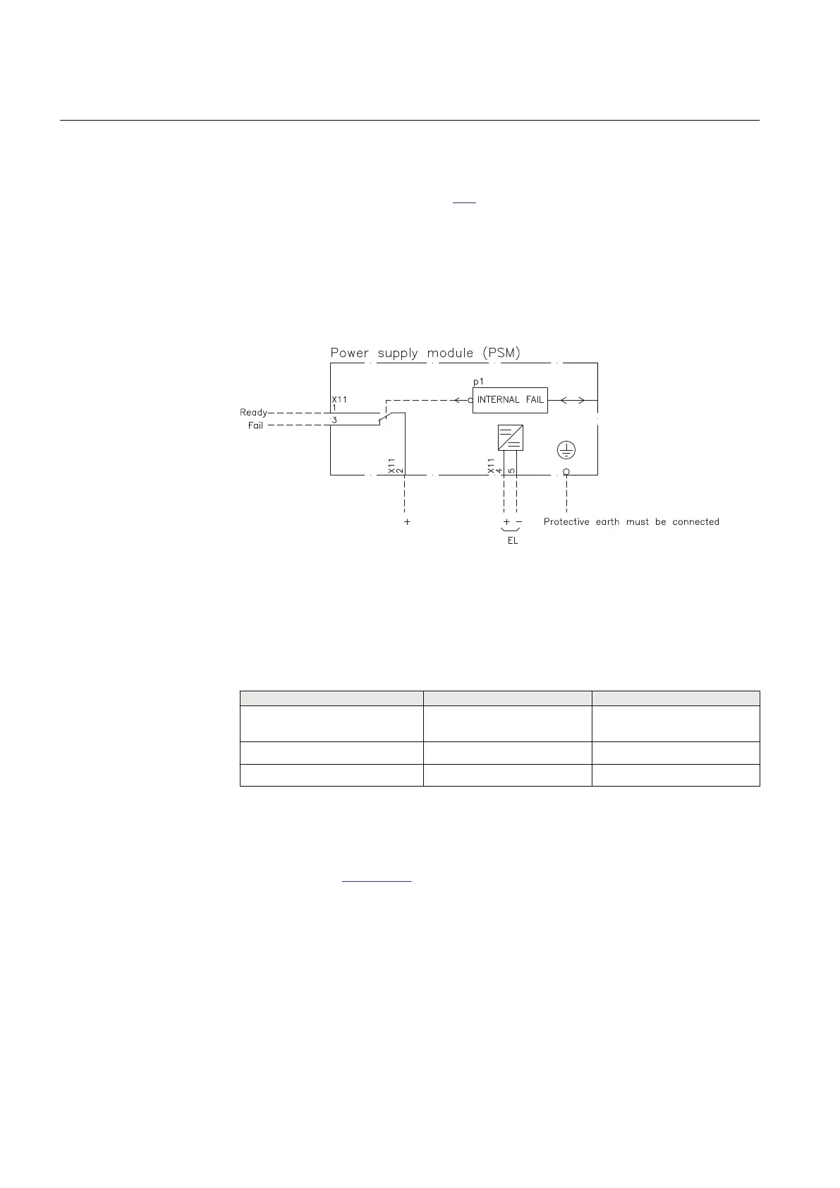
Connection diagram
M6377-8 v3
IEC08000476 V2 EN-US
Figure 374: PSM Connection diagram.
22.2.3.3 Technical data
SEMOD52801-1 v1
M12286-1 v6
Table 617: PSM - Power supply module
Quantity
Rated value Nominal range
Auxiliary DC voltage, EL (input) EL = (24-60) V
EL = (100-250) V
EL ±20%
EL ±20%
Power consumption 32 W typically -
Auxiliary DC power in-rush < 10 A during 0.1 s -
22.2.4 Local human-machine interface (Local HMI)
SEMOD56218-5 v4
Refer to section Local HMI for information.
22.2.5 Transformer input module (TRM)
IP15581-1 v1
Section 22 1MRK 505 394-UEN A
IED hardware
814 Line differential protection RED650 2.2 IEC
Technical manual

Table of Contents

Other manuals for ABB RED650

Related product manuals