EasyManua.ls Logo

Delta AH500 - Profile

Delta AH500
780 pages
Print Icon
To Next Page IconTo Next Page
To Next Page IconTo Next Page
To Previous Page IconTo Previous Page
To Previous Page IconTo Previous Page
Loading...
Chapter 8 Serial Communication Module AH10/15SCM
8-5
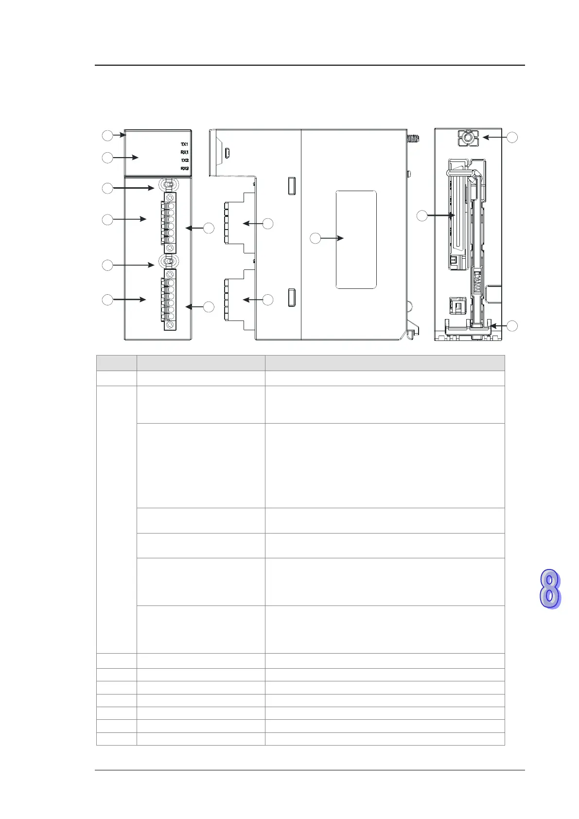
8.2.2 Profile
AH10SCM-5A
10SCM
COM 1
TX-
TX+
TR 1 O N O FF
CO M2 RS4 85
CO M1 RS4 85
RUN
ERROR
FE
SG
FE
SG
O FFO NTR 2
COM 2
TX+
RX+
RX-
TX-
D+
D-
FE
SG
RX-
FE
SG
D-
D+RX+
1
12
2
3
4
7
13
6
8
9
11
10
5
9
Number
Name Description
1 Model name Model name of the module
2
RUN LED indicator (green)
Operating status of the module
ON: The module is running.
OFF: The module stops running.
ERROR LED indicator (red)
Error status of the module
ON: There is a hardware error.
OFF: The module is normal.
Blink: 1. The setting of the module is incorrect, or there
is a communication error.
2. Restoring the module to the default factory
value
COM1 (RS-485) LED
indicator (green)
ON: RS-485 mode
OFF: RS-422 mode
COM2 (RS-485) LED
indicator (green)
ON: RS-485 mode
OFF: RS-422 mode
TX1/TX2 LED indicator
(orange)
Blink: The data is being transmitted through the
RS-485/RS422 port.
OFF: The data is not being transmitted through the
RS-485/RS422 port.
RX1/RX2 LED indicator
(orange)
Blink: The data is being reveived through the
RS-485/RS422 port.
OFF: The data is not being reveived through the
RS-485/RS422 port.
3 Switch of terminal resistor 1 Switching terminal resistor 1 ON/OFF
4
Terminals
Terminals for COM1 (RS-422)
5
Terminals
Terminals for COM1 (RS-485)
6
Switch of terminal resistor 2
Switching terminal resistor 2 ON/OFF
7
Terminals
Terminals for COM2 (RS-422)
8
Terminals
Terminals for COM2 (RS-485)
9
European-style terminal
Terminals for wiring

Table of Contents

Other manuals for Delta AH500

Related product manuals