EasyManua.ls Logo

Delta AH500 - Port

Delta AH500
780 pages
Print Icon
To Next Page IconTo Next Page
To Next Page IconTo Next Page
To Previous Page IconTo Previous Page
To Previous Page IconTo Previous Page
Loading...
AH500 Module Manual
8-6
Number
Name Description
block
10
Label
Nameplate
11 Set screw Fixing the module
12
Connector
Connecting the module and a backplane
13
Projection
Fixing the module
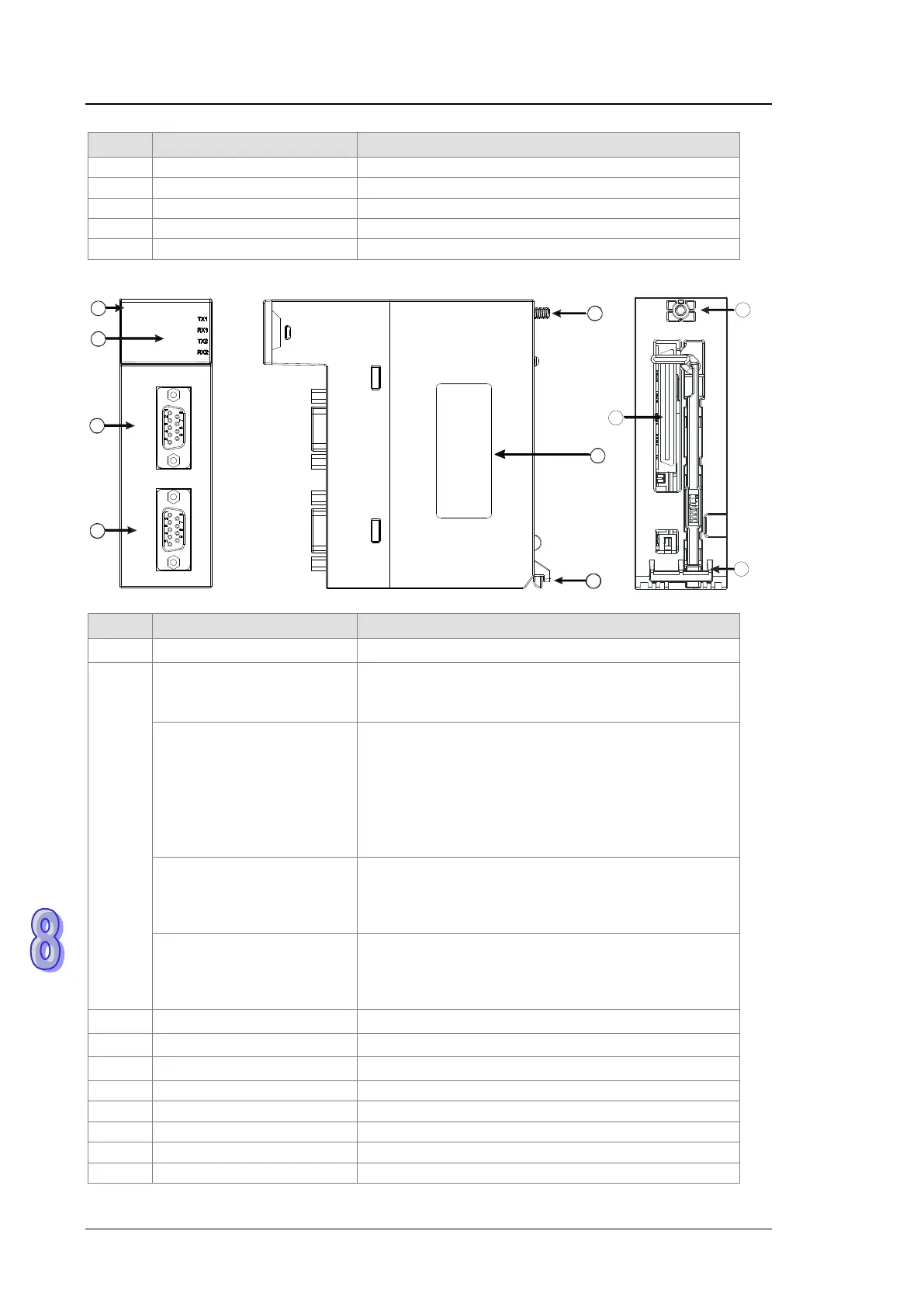
AH15SCM-5A
9
10
8
15SCM
ERROR
RUN
C O M1
COM 2
3
4
1
2
7
6
5
Number
Name Description
1 Model name Model name of the module
2
RUN LED indicator (green)
Operating status of the module
ON: The module is running.
OFF: The module stops running.
ERROR LED indicator (red)
Error status of the module
ON: There is a hardware error.
OFF: The module is normal.
Blink: 1. The setting of the module is incorrect, or there
is a communication error.
2. Restoring the module to the default factory
value
TX1/TX2 LED indicator
(orange)
Blink: The data is being transmitted through the
RS-232 port.
OFF: The data is not being transmitted through the
RS-232 port.
RX1/RX2 LED indicator
(orange)
Blink: The data is being reveived through the RS-232
port.
OFF: The data is not being reveived through the
RS-232 port.
3 COM1 (RS-232) RS-232 mode
4 COM2 (RS-232) RS-232 mode
5 Set screw Fixing the module
6
Label
Nameplate
7
Projection
Fixing the module
8
Set screw
Fixing the module
9
Connector
Connecting the module and a backplane
10
Projection
Fixing the module

Table of Contents

Other manuals for Delta AH500

Related product manuals