EasyManua.ls Logo

Tormach 1100M - General Site and Space Requirements; Site Requirements; Space Requirements; Operator Workstation Reference

Tormach 1100M
305 pages
Print Icon
To Next Page IconTo Next Page
To Next Page IconTo Next Page
To Previous Page IconTo Previous Page
To Previous Page IconTo Previous Page
Loading...
3.1 GENERAL SITE AND SPACE REQUIREMENTS
When choosing a location for your machine, you must verify
that it meets all requirements outlined in this section.
3.1.1 Site Requirements
You must verify that the area:
l Allows for unrestricted access to machine controls.
l Conforms to the following:
o
Primary Power RequiredSingle-Phase 230 Vac,
50/60 Hz
Maximum 240 Vac, 50/60 Hz
o
Recommended Circuit AmperageDedicated 20 A
breaker
Maximum 60 A breaker
Note: For more information, see "Electrical and
Power Requirements" (on the next page).
l Has clean, dry, compressed air.
l Has one continuous slab sufficient to support the weight
of the machine, accessories, and any additional
equipment.
l Is a dry, properly ventilated, and well-lit internal space
that conforms to the following temperature and
humidity requirements:
o
Operating Temperature Range 40°F-100°F (5°C-
38°C)
o
Humidity Range 5%-95% (non-condensing)
l Provides for unobstructed machine motion and
operation.
3.1.2 Space Requirements
The area must meet the following space requirements. Allow
more space to access the rear of the machine for maintenance
and repairs.
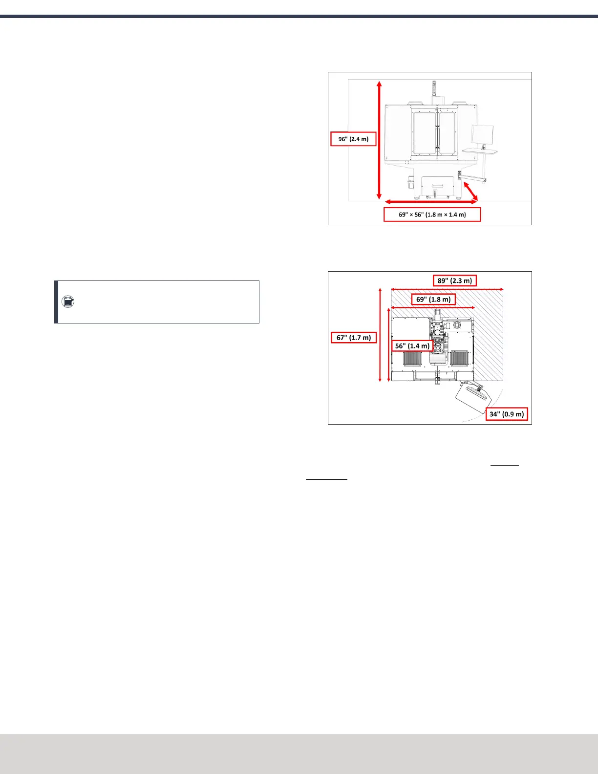
l
Machine Size69" × 56"(1.8 m × 1.4 m)
l
Machine Height96"(2.4 m)
Figure 3-1: Dimensions of the machine itself, as
viewed from the front.
l
Typical System Footprint89"× 67"(2.3 m × 1.7 m)
Figure 3-2: Dimensions of the machine and it's
required added space, as viewed from above.
If a pallet is too wide to fit through a doorway, see Moving
Dimensions (D40147).
3.1.3 Operator Workstation Reference
The typical operator workstation is the area in front of the
enclosure doors and the Controller Arm, as shown in the
following image.
©Tormach® 2023
Specifications subject to change without notice.
Page 34 Tormach 1100 Operator's Manual (Version 1223A)
For the most recent version, see tormach.com/support
3: SITE REQUIREMENTS

Table of Contents

Other manuals for Tormach 1100M

Related product manuals